Oavsett om du är husbyggare, ombyggare eller inredningsdesigner, kommer det bästa programmet för planritningar att göra ditt arbete mycket enklare.
Det rätta ritningsprogrammet gör mer än bara spara tid, besvär och pengar. Det hjälper dig också att vinna fler kunder. Därför är det viktigt att välja med omsorg.
Det finns många alternativ för ritningsprogram. Hur hittar du det som passar bäst för dig och ditt företag?
I denna 10-minuters läsning får du all information du behöver för att göra det rätta valet.
Låt oss börja!
Hur man väljer det bästa programmet för planritningar av bostäder
Det finns många olika program för planritningar av bostäder med en mängd olika funktioner. Inte alla kommer att vara rätt val för ditt företag. Här är fem saker du bör överväga när du väljer:
1. Användarvänlighet
Hur lätt är det att använda? Behöver du en omfattande designutbildning och många års erfarenhet för att använda det effektivt? Det är ofta fallet med professionella CAD- eller BIM-designprogram. Andra ritningsprogram kanske saknar vissa avancerade anpassningsfunktioner men är lättare att använda.
2. Prisvärdhet
Hur mycket är du villig att investera i ritningsprogram? Stora byggföretag budgeterar vanligtvis för dyra program som designteamet kan arbeta med. Mindre entreprenadföretag och hemrenoverare har ofta nytta av mer budgetvänlig program som fortfarande har de nödvändiga designverktygen.
3. Funktionalitet
Vad behöver du att programmet ska göra? Bara skapa 2D-ritningar? De flesta bostadsproffs skulle dra nytta av ytterligare funktionalitet. Därför är det bäst att leta efter moderna ritningsprogram som Cedreo.
Cedreo erbjuder viktiga verktyg för planritningar som är enkla att använda. Med Cedreo kan du enkelt justera planritningar, lägga till flera våningar, rita och skriva ut i skala, samt snabbt beräkna ytor. Dessutom ger Cedreo dig allt du behöver för att producera 3D planritningar och fotorealistiska renderingar.
4. Skalbarhet
När ditt företag växer, kommer ritningsprogrammet att kunna hänga med? Leta efter alternativ som gör det enkelt att lägga till fler teammedlemmar i ditt konto och var särskilt uppmärksam på prissättning för att skala programmets funktionalitet.
5. Support
Se till att det finns bra supportalternativ, som handledningar och kundsupport, för att hjälpa dig med dina projekt.
10 Bästa programmen för planritningar (inklusive nyckelfunktioner)
Så låt oss titta på 10 av de bästa programmen för planritningar för att hitta det som passar bäst för ditt företag. Vi börjar med ett program som allt fler bostadsproffs väljer.
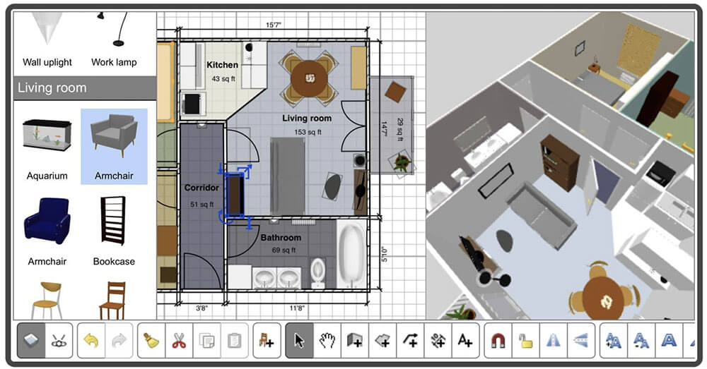
1. Cedreo

Cedreo is the leading 3D blueprint software that more builders, remodelers, and designers are switching to. It’s hard to find another program with such a great combination of 2D and 3D home design tools that are easy to use!
In fact, with Cedreo you can design an entire home from start to finish, complete with 2D blueprints and 3D rendCedreo är det ledande programmet för 3D-planritningar som allt fler byggare, ombyggare och designers väljer. Det är svårt att hitta ett annat program som kombinerar 2D- och 3D-verktyg för hemdesign på ett så användarvänligt sätt!
Med Cedreo kan du faktiskt designa ett helt hem från början till slut, inklusive 2D-planritningar och 3D-renderingar, på bara två timmar!
Det hela börjar med ett intuitivt gränssnitt som har de kraftfulla verktygen du behöver utan att vara överväldigande. Importera en befintlig planlösning eller börja dina ritningar från början — oavsett vilket, det tar bara några klick att skapa en enkel layout.
Cedreo har också ett omfattande bibliotek som ingår i alla betalversioner av programmet – inga tillägg krävs! Det har Över 7 000 alternativ för möbler, dekorationer och material.
När din plan är klar är det bara några klick för att skapa hög kvalitet fotorealistiska renderingar. Dessa är perfekta för att hjälpa potentiella kunder visualisera det färdiga projektet.
Och när ditt team växer, växer även Cedreo. Lägg till ytterligare teammedlemmar med företagsplanen så att alla kan samarbeta om designen via det molnbaserade programmet.
Om frågor uppstår är hjälp lätt att hitta. Förutom videohandledningarna och individuell utbildning kan du kontakta din dedikerade framgångsansvarige för personlig hjälp. De ser till att du får svar så att dina projekt inte försenas.
Nyckelfunktioner:
- Importera alla dina befintliga planritningar
- Kopiera och återanvänd design för att spara tid
- Visa 2D- och 3D-planritningar samtidigt
- Skriv ut ritningar i skalen
- Ingen gräns för antalet projekt du kan skapa
- Avancerade designmöjligheter för element som sänkta tak eller flerfallstak
- Anpassa nästan alla designelement från möbler till fönster
- Kompatibel med Windows och Mac
- webbaserad bearbetning lägger inte ner din dator
- Att dekorera med ett klick sparar dig massor av tid
- Skapa 3D-renderingar på 5 minuter
Prissättning:
Det finns en Cedreo-plan som passar varje budget. Kolla in våra planer här.
Registrera dig till en gratis konto och börja designa idag.
2. SketchUp Pro

SketchUp Pro är en populär plattform för 3D-modellering med många olika användningsområden. Även om det inte är utformat specifikt som ritningsprogram, låter det dig skapa både 2D- och 3D-planer.
SketchUp Pro fungerar bra för att presentera ditt projekt med interaktiva 3D-genomgångar. Plus, med några ytterligare tillägg, kan du till och med skapa imponerande 3D-renderingar för dina projekt.
Så ja, du kan producera hemdesigner och ritningar av hög kvalitet med SketchUp Pro, men det har en brant inlärningskurva. Detta gäller särskilt om du inte har mycket tidigare erfarenhet av 3D CAD.
Du kommer snabbt att märka att du behöver köpa ytterligare tillägg (som ibland kan vara lika dyra som SketchUp Pro själv!) för att skapa saker som 3D-renderingar.
Nyckelfunktioner:
- Avancerade 3D-modelleringsverktyg
- Skapa professionella 2D-ritningar
- 3D-katalog med tusentals objekt
- Möjlighet att skapa 3D-renderingar med köp av tillägg
- Rapporteringsverktyg
- Interaktiva presentationsverktyg
Prissättning:
- Handla $199/år – Personliga projekt
- Pro $299/år – Professionella användare
- Studio $1 199/år – För avancerade arbetsflöden
3. AutoCAD

Under en lång tid, AutoCAD har varit guldstandarden för professionella CAD-program. Arkitekter, ingenjörer och andra proffs använder den för att skapa detaljerade 2D- och 3D-designer för nästan vad som helst.
Även om det inte är ett specifikt ritningsprogram, kommer det med en mängd verktyg för att skapa tekniska ritningar för olika discipliner. Om du arbetar med ett stort byggföretag och behöver skapa detaljerade ritningar för VVS, mekanik eller struktur, är AutoCAD ett av dina bästa val.
Men för de flesta husbyggare, ombyggare och inredningsdesigners är AutoCAD överdrivet. Även om det har en lång lista med verktyg, har det också en mycket brant inlärningskurva och kan bli dyrt.
Nyckelfunktioner:
- Solida supportalternativ
- Massor av tillgängliga tutorials
- Effektivt arbetsflöde med arkitekturverktygssatsen
- Mobilappar
- Möjlighet att automatisera vissa ritningsuppgifter
- Skapa tekniska ritningar för olika yrken
Prissättning
- 220 USD/månad eller 1 775 USD/år
- Det finns några billigare alternativ för studenter
4. Floorplanner

Om du inte är en CAD-expert och vill ha en ritningsprogram som är enkel att använda, Floorplanner vara ett bra val. Dess intuitiva gränssnitt är enkelt att använda från början och gör det möjligt för dig att snabbt skapa och dekorera enkla inredningsplaner. Floorplanner har också ett stort designbibliotek med massor av olika möbel- och dekorationsalternativ för att tillfredsställa din kreativa sida.
Men dess funktioner kan vara för begränsade för husbyggare och ombyggare. Eftersom det är fokuserat på inredningslayouter finns det begränsade verktyg för att skapa tak och landskapsdesign. Dessutom är renderingarna inte de mest realistiska, särskilt när det gäller texturer och naturliga ljuseffekter.
Nyckelfunktioner:
- Lättanvända layoutverktyg
- Stort 3D-bibliotek
- Skapa 3D-planritningar och 3D-renderingar
- Molnbaserad program
- Mobilappar
Prissättning för privatpersoner
- BASIC Gratis
- PLUS $5/månad
- PRO $29/månad
Prissättning för företag
- TEAM $59/månad
- BUSINESS $179/månad
- ENTERPRISE $599/månad
5. Planner 5D

Planner 5D är ett prisvärt program för tekniska ritningar, särskilt för hobbyister och amatördesigners. För priset erbjuder Planerare 5D en överraskande mängd funktioner.
Dess användargränssnitt är enkelt att navigera och programmet gör det möjligt att skapa både 2D-planer och 3D-visualiseringar. Det har till och med alternativ för visning i förstärkt och virtuell verklighet.
Men även om det kan vara ett bra alternativ för Gör det själv, det kommer sannolikt att sakna några funktioner som professionella byggare behöver, som att enkelt exportera och skriva ut ritningar i skala eller mer avancerade anpassningsverktyg.
Nyckelfunktioner:
- HD-visualiseringar
- Användargenererat designbibliotek med över 5 000 objekt
- 2D- och 3D-designlägen
- Automatiserat möbelarrangemang
Prissättning
- BASIC gratis
- BETALDVERSION 6,99 USD/månad, 15,99 USD/år eller 24,99 USD för ett premiumkonto (för alltid)
6. SmartDraw

Smartdraw är en webbaserad ritapp som kan användas för mer än bara 2D-planritningar. Den är gjord för att skapa en mängd olika diagram, skisser och planer. Dessutom integreras den med verktyg från tredje part som Google Drive och Office.
Som ritprogram har SmartDraw många användbara funktioner för att skapa 2D-planer, såsom färdiga mallar, ett bibliotek med arkitektoniska symboler och möjligheten att rita och skriva ut i skala.
Det finns dock inga 3D-verktyg. Och eftersom 3D-ritningar och renderingar blir en allt viktigare del av professionella projektpresentationer, SmartDraw kommer till kort för de flesta bostadsproffs.
Nyckelfunktioner:
- Arkitektoniska symboler för VVS, VVS, el, etc.
- Intuitiva verktyg
- Mobilappar
- Enkel delning av planer med integrerade molnlagringstjänster
Prissättning
- INDIVIDUELLA $9,95 per månad
- TEAM Börjar på $5,95 per användare, per månad (minst 5 användare)
- FÖRETAG Börjar på $2 995 per år
7. Edraw Max

Edraw Max är ett diagramverktyg som liknar SmartDraw. Det låter dig skapa ett brett utbud av diagram, grafer och till och med grundläggande 2D-ritningar.
Men eftersom det inte är strikt ett ritningsprogram, kommer du att vara begränsad med vad du kan göra. Tänk inte på att skapa 3D-planlösningar, fotorealistiska visualiseringar eller något mer än grundläggande 2D-ritningar.
Nyckelfunktioner:
- Skapa tankekartor, flödesscheman och andra diagram
- Fungerar på Mac, Windows och Linux
- Lättanvända dra och släpp-verktyg
- Färdiggjorda mallar
Prissättning
- INDIVIDUELLA $99/år
- TEAM $119/år för 2 enheter
8. Sweet Home 3D

Om du har en mycket begränsad budget och bara behöver arbeta med några enkla projekt, kan Sweet Home 3D fungera som ett ritprogram för tekniska ritningar. Det är en gratis öppen källkod-program som kommer med ett litet bibliotek av färdiga designfunktioner.
Betala för att få tillgång till extra designkomponenter så får du lite ytterligare funktionalitet. Dock är 3D-bilderna och hela plattformen något föråldrade, så de flesta professionella kommer att söka efter andra alternativ.
Nyckelfunktioner:
- Några 3D-designverktyg
- Växla mellan 2D- och 3D-vyer
- Importera en befintlig ritning
- Plananteckning
Prissättning
- GRATIS version med mycket begränsade alternativ
- Flera betalda alternativ för att få tillgång till ytterligare produktbibliotek
9. RoomSketcher

Med ett lättanvänt gränssnitt och en kombination av 2D- och 3D-ritningsverktyg, RoomSketcher är en populär ritprogram. Skapa allt från 2D-planer med måttmarkeringar till 3D-foton i ett enda program.
Dock skulle vissa byggare föredra högre kvalitet på renderingarna med mer realistiska texturer och ljuseffekter. Andra blir frustrerade över att även med de betalda planerna är du begränsad i vad du kan göra och ofta måste spendera mer pengar för att få tillgång till extra funktioner.
Nyckelfunktioner:
- Skapa 2D- och 3D-planer
- Fungerar på PC, Mac och mobila enheter
- Ladda ner ritningar i skala
- 3D-bilder och genomgångar
Prissättning
- VIP $49/år
- PRO $99/år
10. Roomle

Roomle skapades främst som ett verktyg för att planera möbelarrangemang och visa upp möbelprodukter. För det ändamålet har Roomle en kombinerad 2D/3D-rumplanerare som låter dig skapa en interaktiv golvplan.
Även om det kan fungera bra för vissa inredningsdesigners, kräver de flesta bostadsproffs ytterligare funktionalitet — som att skriva ut 2D-ritningar i skala, landskapsdesignverktyg, exteriöra renderingar med mera.
Nyckelfunktioner:
- Lätt att använda
- Fungerar på flera enheter
- Interaktiva 3D-planer
- Molnbaserad program
Prissättning
- Roomle är gratis att använda
Vilken Planritningsprogram är rätt för dig?
Oavsett om du är byggare, ombyggare eller designer, bör det bästa ritprogrammet spara dig tid, pengar och besvär.
Därför byter fler och fler bostadsproffs till Cedreo. Du kan helt enkelt inte slå dess unika kombination av kraftfulla funktioner, lättanvända verktyg och fantastiska fotorealistiska renderingar.
Så varför vänta? Gör bytet idag och anslut dig till bostadsproffsen som redan expanderar sina verksamheter tack vare Cedreo. Testa det gratis nu!