Logiciel plan de masse

Terrain naturel, terrain fini, simplifiez-vous la modélisation et l’aménagement de terrains avec Cedreo et obtenez des plans de masse conformes aux attentes des services d’urbanisme.

Gagnez en précision et rapidité avec un logiciel de plan de masse dédié aux professionnels

Que vous soyez constructeur de maisons individuelles, maître d’œuvre ou professionnel de la rénovation, créez facilement un plan de masse conforme aux exigences d’une  déclaration préalable de travaux ou d’un permis de construire, pour une présentation claire et professionnelle de vos projets.

Gagnez en efficacité

Obtenez un plan de masse finalisé en seulement 20 minutes grâce à des outils avancés de modélisation et d’aménagement de terrain, spécialement conçus pour optimiser votre temps et simplifier chaque étape du processus. 

La modélisation de terrain 

L’aménagement de terrain 

Plan de masse réalisé avec Cedreo

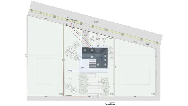
Obtenez un plan de masse conforme

Générez automatiquement le plan de masse nécessaire pour les demandes d’urbanisme avec toutes les informations indispensables :  échelle, orientation, distances, emprise au sol…

Plan de masse conforme réalisé avec Cedreo

Visualisez en 3D simultanément

Grâce à la visualisation 3D, vos clients comprennent immédiatement l’implantation de leur future maison, les accès, les extérieurs. Une présentation claire qui renforce la confiance et accélère la prise de décision.

Rendu 3D d'une maison avec terrain en pente et garage en sous sol créé avec Cedreo
Photo Nicolas Bacquet

“L’implantation précise sur le terrain nous permet d’éviter les mauvaises surprises lors de la visite technique.”

Nicoals Bacquet Responsable d’agence, Maisons France Style

Exemples de plans de masse réalisés avec Cedreo

Choisissez le niveau de détails que vous souhaitez voir apparaître sur vos plans en fonction de vos interlocuteurs. Voici quelques exemples réalisés avec le logiciel pour plan de masse Cedreo :

Plan de masse avec symboles et annotations réalisé avec Cedreo

Plan de masse avec symboles et annotations

Les symboles et annotations vont aider vos interlocuteurs à bien appréhender le projet et vous permettre d’être en conformité avec les demandes des services d’urbanisme. Vous pouvez notamment faire apparaître les hauteurs des constructions par rapport au terrain naturel.

Plan de masse d'un maison sur terrain en pente réalisé avec Cedreo

Plan de masse avec terrain en pente

Faîtes apparaître les points et lignes d’élévation ainsi que les cotes d’élévation terrain naturel / terrain fini sur votre plan de masse pour une bonne compréhension de la gestion de la pente sur la parcelle.

Plan de masse d'une maison neuve dans un lotissement réalisé par Cedreo

Plan de masse d’une maison en lotissement

Si le projet de construction se trouve dans un lotissement, dessinez les parcelles voisines et donnez une vue de l’intégration de la maison à l’ensemble du quartier.

Plan de masse projeté avec extension véranda réalisé avec Cedreo

Plan de masse avec extension véranda

Le dépôt d’une déclaration préalable de travaux est nécessaire pour la construction d’une véranda, vous aurez besoin du plan de masse pour vos démarches administratives.

Plan de masse d'une maison avec agrandissement réalisé avec Cedreo

Plan de masse avec agrandissement en L

Avec Cedreo vous pouvez générer les plans de masse de projets d’agrandissement et fournir l’avant / après à vos différents interlocuteurs.

Plan de masse avec dépendance réalisé avec Cedreo

Plan de masse avec dépendance

Tous les bâtiments de la parcelle que vous dessinez sont visibles sur le plan de masse : garage détaché, abri de jardin, ateliers.

C’est facile à utiliser.

Mais vous pouvez toujours compter sur le support Cedreo.

Pour une prise en main encore plus rapide.
Parce que vous pouvez toujours aller plus loin et gagner du temps.

La solution tout-en-un de la conception à l’exécution

Constructeurs, maîtres d’œuvre, gérez vos projets de constructions ou de rénovation de maison de A à Z avec Cedreo.

Plans de maison

Générez l’ensemble des plans techniques requis pour chaque phase de votre projet de construction ou de rénovation de maison.

En savoir plus sur les plans

Visualisation 3D

Facilitez la projection client en générant des rendus 3D intérieurs et extérieurs du projet entièrement aménagés.

En savoir plus sur la visualisation 3D

Présentation de projets

APS, DP, PC… Concevez tous vos documents de présentation et personnalisez-les à vos couleurs.

En savoir plus sur la présentation de projets

Chiffrage

Configurez l’option Chiffrage avec vos propres formules de calcul et obtenez une notice au plus près de vos coûts avec une marge maîtrisée.

En savoir plus sur le chiffrage

Collaboration

Facilitez la coordination entre vos équipes techniques et commerciales en centralisant la conception de vos plans de maisons avec un seul logiciel.

En savoir plus sur la collaboration

Questions Fréquentes

Oui – Plusieurs formats sont disponibles : JPEG ou DXF. Vous pouvez choisir d’afficher ou de masquer différents éléments sur le plan : cotes des parcelles et éléments extérieurs, hauteurs des constructions, lignes et points d’élévations, échelle…

En tant que constructeur de maisons individuelles ou maître d’œuvre, il est indispensable de travailler avec un outil fiable qui vous fera gagner du temps tout en garantissant la conformité de vos dossiers administratifs.

Un logiciel plan de masse comme Cedreo  regroupe toutes ces fonctionnalités :

  • Tracer un plan de masse et simuler l’implantation de la maison sur le terrain.
  • Obtenir les pièces indispensables à la création de vos dossiers.
  • Exporter les documents directement aux formats requis pour les déclarations préalables et permis de construire.

Un plan de masse est indispensable pour soumettre un dossier de permis de construire ou une déclaration préalable, et il facilite la compréhension globale du projet pour les autorités et les parties prenantes. Cedreo permet de représenter une vue d’ensemble d’un terrain avec ses constructions existantes ou projetées et leurs aménagements :

  • Les limites exactes du terrain.
  • L’implantation de la construction avec dimensions et orientation.
  • Les distances aux limites de propriété (lignes de recul).
  • Les accès véhicules et piétons.
  • L’emplacement des réseaux : eaux, électricité, assainissement.
  • Le relief du terrain.
  • Les aménagements extérieurs : terrasses, arbres, piscines, dépendances.
  • L’échelle, l’orientation et les cotes de niveau.

Avec le logiciel plan de masse Cedreo, tous ces éléments peuvent être ajoutés en quelques clics pour produire un plan de masse complet, clair et prêt à être intégré à un dossier de permis de construire.

Créer un plan de masse dans Cedreo est simple, même sans expérience en dessin technique. Le logiciel vous guide étape par étape pour générer un document précis et conforme.

Étapes principales :

  • Définir les dimensions du terrain : soit à partir d’un plan de cadastre, soit manuellement.
  • Positionner la maison sur le terrain, en tenant compte des retraits obligatoires.
  • Ajouter les éléments extérieurs : accès véhicule, clôtures, piscine, terrasse, plantations…
  • Indiquer les distances entre la construction et les limites de propriété.
  • Afficher l’échelle, la rose des vents et les annotations.
  • Télécharger le plan de masse à l’échelle souhaitée en JPEG ou DXF.

Essayez Cedreo pour créer vos prochains projets.

Consulter les tarifs