Plattegrond software: 2D-indeling en 3D-visualisatie
Alles wat jouw team nodig heeft om woningbouw- en renovatieprojecten te verkopen, samen te werken en te coördineren.
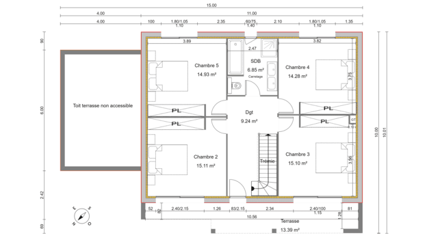
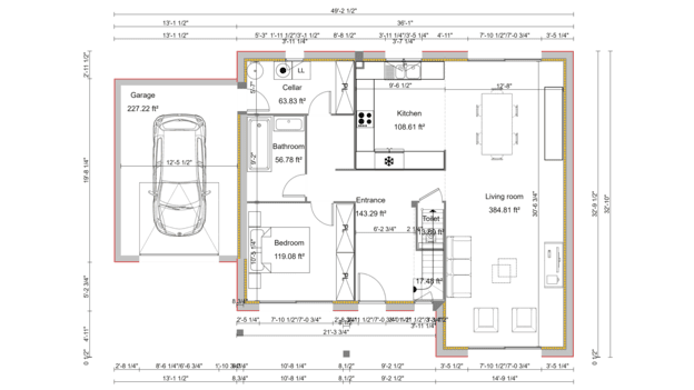
Uitgebreide en intuïtieve plattegronden maken
Help jouw team intuïtief en eenvoudig een plattegrond maken met software speciaal voor bouwers van eengezinswoningen en renovatieprofessionals.
2D- en 3D-plattegronden
De plattegrond software van Cedreo biedt intuïtieve functies voor het snel tekenen van volledige 2D-plannen. Met Cedreo kun je met één klik overschakelen naar 3D-plannen. Fotorealistische kamers geven in één oogopslag een waarheidsgetrouw en overtuigend overzicht van het eindresultaat en helpen eventuele twijfels van jouw klanten vóór de verkoop weg te nemen.

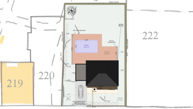
Locatieplan / Terreinmodellering
Cedreo vereenvoudigt het modelleren van natuurlijk terrein en het uiteindelijke terreinontwerp. Met slechts een paar klikken kun je eigendomsgrenzen definiëren, lijnen en gebouwindelingen terugzetten, hoogtepunten definiëren en de volledige 3D-indeling van het perceel beheren. Ontvang een plattegrond op schaal van jouw project.

Doorsnede- en geveltekeningen
Nadat het terrein is gemodelleerd en de plattegronden in Cedreo zijn gemaakt, zijn de aanzichten met één klik klaar om te genereren. Ook doorsnedetekeningen zijn eenvoudig te creëren. Deze plannen worden automatisch aangepast zodra de plattegrond wordt gewijzigd en kunnen op elk moment worden geannoteerd en gedownload.

Sneller en efficiënter een plattegrond maken
Er is geen speciale training nodig om professionele plannen te maken met Cedreo.
- Maak 2D- en 3D-plattegronden, doorsnedetekeningen, geveltekeningen, dakplannen en meer op schaal
- Importeer plannen om als lagen in jouw project te gebruiken
- Configureer de wanddikte en hoogte
- Configureer wanden, platen, afgewerkte vloeren en plafonddikte
- Kies wandtypes (waterdicht, geïsoleerd, scheidingswand, enz.)
- Gelijktijdige 2D- en 3D-weergaven
- Verklein of vergroot plannen met de formaatwijzigingstool
- Verticaal of horizontaal transponeren met het spiegelgereedschap
- Windrichtingen en oriëntatie op het plan
- Gebruiksvriendelijke, automatische en aanpasbare dakintegratie
- Uitgebreide bibliotheek met aanpasbare deuren en ramen
- Uitgebreide bibliotheek met symbolen
- Aanpasbare annotaties en afmetingen op plannen
- Automatische oppervlakteberekening

Al jouw ontwerpen op één plek
Verzamel alle plannen en documenten die je nodig hebt om jouw woningbouw- en renovatieprojecten te verkopen.
Alle essentiële documenten van ieder project gegroepeerd op één plek, up-to-date met jouw laatste wijzigingen en annotaties, en op elk moment te downloaden:
- Locatieplannen
- 2D- en 3D-plattegronden
- Doorsnedetekeningen
- Geveltekeningen
- Dakplannen
- Fotorealistische 3D-weergaven
- Oppervlakte tafel

Laat jouw team samenwerken aan hetzelfde project
Verzamel en deel alle gevalideerde plannen in één tool, klaar voor aanpassing en presentatie aan de klant.
Help jouw team productiever te zijn met de gedeelde abonnementscatalogus en online plattegronden. Geschikt voor elk type team en bruikbaar om gemodelleerde sites en vlaggenschipprojecten te groeperen. Eenmaal getekend en gevalideerd door het ontwerpteam, zijn deze projecten klaar voor gebruik door pre-sales- en verkoopteams.

Eenvoudig en automatisch dakontwerp
Voeg met slechts één klik op de knop automatisch een dak toe. Kies uit een brede bibliotheek met onderdelen om het ontwerp af te stemmen op de behoeften van jouw klanten.
- Automatische platte daken, zadeldaken, enkelvoudige en meervoudige daken
- Automatische of handmatige opties toevoegen aan het dak
- Meerdere zolderstijlen
- Dakramen
- Goten en regenpijpen
- Dakrand
- Brede bibliotheek met materiaalopties

Planningssoftware voor huizenbouwers en renovatieprofessionals
Profiteer van een complete toolbox voor het maken van professionele huisontwerpen.
Importplan
Bespaar tijd door een bestaande plattegrond of tekening van de woning te importeren en deze als laag te gebruiken om jouw lay-out te starten.
Gelijktijdige 2D- en 3D-weergaven
Maak een 2D-huisplattegrond met eenvoudige tekenhulpmiddelen en zie hoe deze tegelijkertijd in 3D tot leven komt.
Automatische dakdetectie
Voeg automatisch een dak toe en wijzig het daktype, dakhelling en -dikte, bekleding, dakkapellen, dakgoten en meer.

Uitgebreide symboolbibliotheek
Voeg symbolen toe aan jouw plan om de technische elementen, ramen of interieurindeling van jouw project weer te geven.
Automatische oppervlaktetabel
Gedetailleerde tabellen van woon- en glasoppervlakken worden tijdens het tekenen automatisch bijgewerkt en kunnen op elk moment worden gedownload.
Automatische en exacte afmetingen
Voeg nauwkeurige afmetingen toe aan jouw ontwerp, zodat het gemakkelijker leesbaar is. Het kost slechts een paar klikken.
Annotaties op plannen
Annoteer jouw plattegronden, dwarsdoorsneden en aanzichten om een nauwkeurige plattegrond te maken.
Print op schaal met 300 DPI
Teken jouw plannen en druk ze nauwkeurig op schaal af. Plannen kunnen worden gedownload in 300 DPI voor een hoge printkwaliteit.
Kant-en-klare catalogus met woningplattegronden
Jouw catalogustekeningen zijn beschikbaar in Cedreo, klaar om aan te passen voor klanten en te delen met het ontwerpteam.
Huisplannen gemaakt met Cedreo Software
Ontdek de magie van online plattegronden maken met Cedreo. Wat het type project ook is, teken en ontwerp het interieur en exterieur om jouw klanten te helpen zichzelf voor te stellen in hun toekomstige huizen.

Geveltekening

Gekleurd plan

3D-plattegrond
Binnen een handomdraai een professionele plattegrond tekenen
Professionele huisontwerpsoftware voor het maken van verbluffende ontwerpen helpt niet alleen de verkoopcyclus te verkorten en een vlotte communicatie te creëren, maar kan ook worden gebruikt om bij te dragen aan het succes van jouw marketingstrategie.
Lees wat onze tevreden klanten over Cedreo zeggen
“Cedreo wordt de standaardsoftware op de markt. Als we die niet hebben, kunnen we het binnenkort niet meer bijhouden.”
“We hebben meer flexibiliteit gekregen in onze relaties met onze klanten. Ik weet niet wat ik zou doen zonder Cedreo!”




