Programa Para Hacer Planos de Forma Sencilla
Todo lo que tu equipo necesita para vender, colaborar y coordinar tus proyectos de construcción y reforma de viviendas.
Programa Para Hacer Planos Completo e Intuitivo
Ayuda a tu equipo a crear planos de forma intuitiva y sencilla con un software para hacer planos online en español dedicado a arquitectos, constructores de viviendas unifamiliares y empresas de reformas.
Planos de Planta 2D & 3D
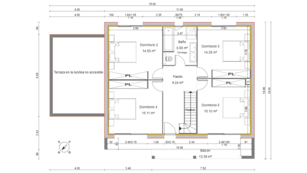
El programa para hacer planos de casas de Cedreo ofrece a sus usuarios funciones intuitivas para dibujar planos de planta completos de forma rápida y sencilla.
Cedreo a permite arquitectos, interioristas y empresas de construcción y reformas pasar de planos 2D a 3D con un solo clic.
Los espacios trazados en 3D ofrecen una visión realista y convincente, con medidas exactas, del resultado final. Estos ayudan en la planificación y a eliminar cualquier duda que puedan tener tus clientes antes de la venta.

Plano de Sitio
El creador de planos de Cedreo simplifica el modelado del terreno natural y el diseño del solar.
Sus herramientas de planificación permiten, con unos pocos clics, definir los límites de la propiedad, establecer las líneas de fondo y la disposición de los edificios, marcar los puntos de elevación y generar el diseño 3D de la parcela.
Obtén un plano del terreno a escala de tu proyecto y genera diferentes versiones dentro de la aplicación.

Planos de Corte y Fachadas
Una vez modelado el terreno y creados los planos de planta en el software de Cedreo,podrás crear las fachadas con un solo clic.
Los planos de corte también son fáciles de generar. Estos planos se modifican automáticamente en cuanto se modifica el plano de planta, y se puede hacer notas y descargarlo en cualquier momento.

Cedreo te Ahorra Tiempo: Desde los Dibujos De los Planos de Casas Hasta el Proyecto Completo
No se necesita formación especial para hacer croquis online profesionales con el software Cedreo.
- Crea planos de planta en 2D y 3D, planos de corte y fachadas, planos de tejado, etc.
- Importa planos de casas y pisos para utilizarlos como capas en tu proyecto
- Configura la altura de los muros
- Configura el grosor de muros, forjados, suelos y techos
- Elige tipos de muros (impermeable, aislado, tabique, etc.)
- Vistas 2D y 3D simultáneas
- Reduce o amplía los planos con la herramienta de cambio de tamaño
- Traspón vertical u horizontalmente con la herramienta espejo
- Brújula y orientación de la casa en el plano
- Amplia biblioteca de puertas y ventanas personalizables
- Amplia biblioteca de símbolos
- Anotaciones y cotas personalizables en los planos
- Cálculo automático de superficies

Todos Tus Planos en Un Lugar
Reúne todos los planos y documentos que necesites para vender tus proyectos de construcción y reforma de viviendas y prepara tus expedientes de licencia de obras.
Cualquier usuario podrá encontrar, en función de su acceso, todos los documentos esenciales para el expediente de licencia de obras, para cada uno de tus proyectos, agrupados en un solo lugar, actualizados con las últimas versiones y anotaciones, y descargables en cualquier momento:
- Planos de sitio
- Planos 2D y 3D
- Planos de corte
- Plano de fachadas
- Planos de tejados
- Render 3D de calidad fotográfica
- Tabla de superficies
Además, no importará si tienes mac o pc o si tu versión de software está actualizada. Como otras aplicaciones web, cada usuario trabajará siempre con la última versión del programa.

Diseño de Tejados Fácil y Automático
Añadir un tejado es sencillo con Cedreo: basta un clic para añadir automáticamente un tejado. Elige entre una amplia biblioteca de tejas para adaptar el proyecto a las necesidades de tus clientes.
- Cubiertas automáticas planas, a dos aguas, a una y a varias aguas
- Opciones automáticas o manuales para añadir al tejado
- Múltiples estilos de buhardilla
- Claraboyas
- Canalones y bajantes
- Imbornales
- Voladizos
- Aleros
- Amplia biblioteca de opciones de cubiertas

Un Espacio Común Para Trabajar en El Mismo Proyecto
Reúne y comparte todos los planos validados en una única herramienta, accesibles para todos los usuarios, listos para su modificación y presentación al cliente. Aplica la metodología BIM para tus proyectos de arquitectura
Ayuda a tus equipos a ser más productivos con la funcionalidad de planos compartidos.
Gracias a esta herramienta, podrás agrupar tus modelados 3D y proyectos emblemáticos.
Una vez dibujados y validados por el equipo de diseño, estos proyectos estarán listos para ser utilizados por los equipos de ventas en diferentes formatos como muestra de los trabajos realizados o como plantillas para el arquitecto o resto de planificadores.

El Kit de Herramientas Perfecto Para Hacer Planos de Casas para Constructores y Empresas de las Reformas
Cedreo es una caja de herramientas completa para crear planos de vivienda en minutos,ya sean reformas o edificios de nueva construcción. El programa online para hacer planos cuenta con una larga lista de funciones para acelerar el proceso de dibujo y mejorar la calidad del diseño para satisfacer incluso al cliente más exigente.

Importa El Plano de Casa
Ahorra tiempo importando un plano de planta o plano de una vivienda existente y, a continuación, utilizalo como capa para empezar tu trazado.

Vistas 2D & 3D Simultáneas
Crea el plano de una casa en 2D con sencillas herramientas de dibujo y observa cómo cobra vida en 3D simultáneamente.
Detección de Tejado Automática
Añade un tejado automáticamente y personalízalo: tipo de tejado, inclinación y grosor del tejado, revestimiento, añade buhardillas, canalones y mucho más.

Extensa Librería de Símbolos
Añade símbolos a tu plano de planta para representar los elementos técnicos, las escaleras o la distribución de los elementos interiores o incluso muebles y otras características de tu proyecto.
Tabla de Superficie Automática
Las tablas detalladas de las superficies habitables y acristaladas actualizan automáticamente las medidas mientras dibujas y pueden descargarse en cualquier momento.

Medidas Automáticas o Customizadas
Añade dimensiones precisas a tu plano de planta para que sea más fácil de leer. Sólo necesitas unos clics.

Anotaciones en Planos
Anota en tus planos de planta, de corte, de fachada y emplazamiento para que tu proyecto sea lo más preciso posible.

Imprime a Escala a 300 DPI
Dibuja tus planos e imprímelos con precisión a escala. Los planos pueden descargarse en 300 DPI para obtener una alta calidad de impresión.

Catálogo de Planos de Casas Listos Para Usar
Los dibujos de tus catálogos están disponibles en Cedreo, listos para ser modificados para tus clientes y compartidos con el equipo de diseño.
Ejemplos de Planos
Utiliza Cedreo para crear planos online para cualquier tipo de habitación, con códigos de colores que ayuden a tus clientes a comprender tu diseño de un vistazo.

Fachada

Distribución con colores

Plano de planta 3D
¿Cómo puede un programa sencillo para hacer planos online beneficiar a tu empresa?
La creación de impresionantes diseños de forma profesional no solo ayuda a acortar el ciclo de ventas y crear una comunicación fácil, sino que también se puede utilizar para impulsar el éxito de tu estrategia de marketing.
Lee lo Que Dicen Nuestros Clientes Felices Sobre Cedreo
«Muy buen producto a muy buen precio»
«Fácil de aprender, rápido de usar. Me gusta la combinación de vistas 2D y 3D de este programa para hacer planos sencillos y la facilidad de cambiar entre las dos».
«Útil para marketing inmobiliario»
«Esta herramienta me permite simular rápidamente un espacio completo en solo un par de horas, ¡lo que realmente me ahorra mucho tiempo de trabajo!»





