Crea Planos 2D Online a Escala de Forma Rápida y Sencilla
Crea planos 2D profesionales con el programa para hacer planos de casas online de Cedreo.

Crea planos 2D online fácilmente, gracias a una gran variedad de intuitivas funcionalidades

Importa un plano en 2D existente y añade medidas personalizadas
Genera imágenes de planos a escala, junto con las tablas de superficies

Cedreo Ofrece Todo lo que Tus Clientes Necesitan Ver en un Plano 2D
El programa de planos 2D es ideal para constructores profesionales, reformadores y diseñadores de interiores. Crea planos de gran calidad, fáciles de entender para tus clientes para que te ayuden a vender más proyectos de diseño.
Una representación en 2D sin perspectiva permite presentar claramente la distribución con la ubicación y las medidas de las paredes, puertas, ventanas y muebles principales, así como las distintas superficies.
Descubre lo Fácil que es Dibujar Planos 2D Online con Cedreo
- Utiliza el mouse para crear rápidamente un plano 2D online desde cero
- Importa un plano 2D escaneado en formato JPG o PNG
- Diseña sobre planos ya existentes y diseña diferentes distribuciones con puertas y ventanas
- Gira o utiliza el modo espejo en planos 2D en un eje vertical con un solo clic
- Duplica la planta baja para crear un segundo piso
- Descarga e imprime imágenes de planos 2D a escala (con medidas imperiales o métricas)
- Visualiza tablas de superficies actualizadas en todo momento


Personaliza las Medidas del Plano en 2D
Puedes guardar tus planos como plantillas y modificarlos fácilmente para cada cliente nuevo. Cambia el tamaño haciendo clic y soltando las paredes que desees ampliar o reducir. Añade medidas interiores entre paredes. Las tablas de superficies se actualizarán automáticamente.
Ajusta los planos en tiempo real durante las reuniones con tus clientes para acelerar el proceso de aprobación.
Más información sobre planos de casas con medidasConvierte Planos 2D a 3D con Un Solo Clic
Los planos 2D son el primer paso en el proceso de diseño de una casa. El programa para dibujar planos de Cedreo te permite crear planos de casas 2D y convertirlos en planos 3D con un solo clic.
Mejora el diseño de la casa en 3D con la librería de materiales, muebles y otros elementos decorativos de Cedreo. Tu propuesta de diseño será aún más atractiva con los planos 3D fotorrealistas.
Descubre cómo comunicar tu idea con planos en 3D
Programa de Planos 2D Online Todo en Uno
Cedreo te ofrece todas las funcionalidades que necesitas para crear planos online 2D en un abrir y cerrar de ojos, ¡sin necesidad de extensiones ni plugins!

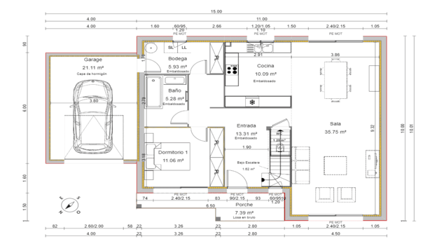
Plano en Blanco y Negro
Esta vista simplificada te permite centrarte en la distribución de la casa. Incluye los nombres de las habitaciones, las medidas, las aberturas para las puertas, ventanas y su orientación, las paredes y el grosor de las paredes.

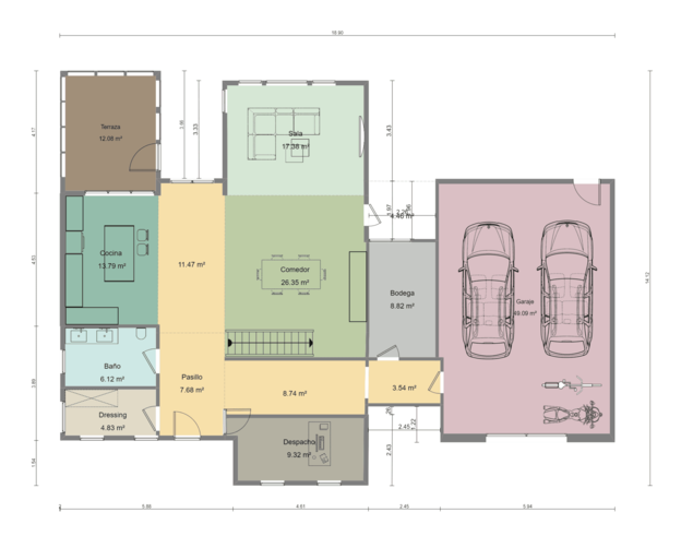
Plano con División por Colores
La división de las habitaciones y zonas por colores hace que esta versión del plano sea más fácil de entender de un solo vistazo. Las aberturas de puertas y ventanas no están coloreadas, por lo que destacan en esta vista.

Plano con Tipos de Paredes
Esta vista muestra todos los tipos de muros: paredes interiores, aislamiento interior y/o exterior, paredes para zonas húmedas, tabiques, etc.

Plano con Mobiliario
Este detallado plano 2D muestra la colocación de los principales muebles de la casa. Los diseñadores pueden mover o editar fácilmente los muebles en función de los requisitos del cliente.

Plano con Símbolos Técnicos
Puedes añadir símbolos para mostrar la ubicación de elementos importantes de la casa, como calefactores, conexiones para lavadora y secadora, depósitos de agua caliente, tomas de corriente, etc.

Tabla de Superficies
Esta tabla muestra los metros cuadrados de cada habitación, de cada planta y de toda la casa. Puedes incluir el porche, la terraza y el garaje como zonas anexas.
Funcionalidades Para Crear Planos en 2D Más Claros y Detallados
Cedreo tiene todas las funciones necesarias para crear planos 2D claros y detallados en cuestión de minutos. Observa cómo tus diseños 2D se representan en 3D en una ventana independiente.

Acceder a Tu Plano 2D Online
Cedreo es un software 100% online, para que puedas cambiar tu diseño desde donde tú quieras. Estés dónde estés, todo lo que necesitas es un ordenador e internet.

Importar Planos
Importa un plano existente o empieza un proyecto nuevo. Haz clic y arrastra para dibujar continuamente muros de carga y tabiques. Añade esquinas y ángulos haciendo clic con el botón izquierdo.

Crear en 2D y Ver en 3D
Observa un boceto realista de tu diseño en 2D. Las vistas de ventanas paralelas aportan claridad durante el proceso de diseño.

Crear Diseño Exterior
Traza los límites del terreno o importa una parcela para visualizar todo el conjunto.

Añadir Símbolos al Plano
Añade símbolos al plano que representen elementos como ventanas, paredes, escaleras y/o mobiliario.

Cambiar el Tamaño de los Planos
Cambia el tamaño de todo el plano en unos pocos clics, sin necesidad de empezar desde cero.

Añadir Medidas
Añade las medidas en una tabla legible en el lateral del plano para tenerlas a mano en todo momento, para que todo el mundo pueda imaginarse el resultado final.

Dibujar e Imprimir a Escala
Dibuja planos online 2D a escala rápidamente e imprime con la máxima precisión.
Preguntas Frecuentes
¿Qué es un plano en 2D?
Los planos 2D son dibujos que representan un solar o edificio. Los planos 2D muestran la distribución, la ubicación de los muebles, los tipos de paredes, puertas y ventanas, el paisaje y sus medidas. Los planos coloreados ayudan a diferenciar los distintos tipos de habitaciones y su distribución.
¿Qué diferencia hay entre los planos 2D y 3D?
El plano en 2D se utiliza principalmente para comunicar aspectos técnicos que los constructores necesitan para llevar a cabo los proyectos. Incluye detalles como los muros de carga, tipos de paredes, orientación de las puertas y ventanas y medidas. Los planos en 3D ofrecen una visión más realista, ayudan a los clientes a visualizar cómo combinan los distintos detalles del diseño y a ver cómo quedan los muebles instalados en el nuevo entorno.
¿Puedo crear un plano de una casa entera?
Sí, Cedreo es un software que te permite diseñar casas enteras y sus plantas por separado. Puedes añadir rápidamente pisos superiores y sótanos duplicando todas las paredes exteriores, para garantizar una cohesión completa.
¿Son mejores los planos 2D ó 3D?
Los planos en 2D y 3D tienen objetivos diferentes. Los planos 2D son ideales para mostrar detalles más técnicos, como las medidas de las paredes o la orientación y dirección de las puertas. Pueden descargarse e imprimirse a escala. Sin embargo, a menudo se quedan cortos como herramienta comercial, porque pueden resultar difíciles de leer y entender para los clientes. Los planos en 3D dan una idea más real de la distribución de la casa.