スケールに合わせて2Dの間取り図を迅速かつ簡単に作成します
Cedreoのクラウドベースの住宅デザインソフトウェアでプロフェッショナルな2D間取り図を簡単に作成できます。

直感的な機能が豊富で、オンラインで簡単に2Dの間取り図を作成できます。

既存の2D間取り図をインポートし、カスタマイズされた寸法を追加します。
スケールに合った2D間取り図画像と面積表を生成します。

お客様が必要とする2D間取り図すべての要素をCedreoが提供します!
2D間取り図ソフトウェアは、プロの住宅建設業者、リフォーム業者、およびインテリアデザイナーに最適です。クライアントが理解しやすく、ホームデザインプロジェクトの販売促進にも役立つ高品質な2D間取り図を作成できます。
透視を排除した2D表現により、壁、ドア、窓、主要な家具の配置と寸法、および面積を明確に提示できます。
Cedreoで2D間取り図を簡単に作成する方法を見てみましょう
- マウスを使って、最初から迅速に2D間取り図を作成
- JPGまたはPNG形式でスキャンされた既存の2D間取り図をインポート
- 既存の間取り図の上に描き、ドアや窓を含む新しいレイアウトをデザイン
- 1クリックで垂直軸に沿って2D間取り図を回転または反転
- 既存階の間取りを複製して、新しい階を作成します。
- スケールに合わせて2D間取り図の画像をダウンロードし印刷(インチまたはメートル法の寸法で
- 常に最新の面積表を表示


2D間取り図の寸法をカスタマイズ
間取り図をテンプレートとして保存し、新しいお客様ごとに迅速に修正することができます。拡大または縮小したい壁をクリックしてドラッグしてサイズを変更します。壁から壁までの内部寸法を追加します。面積表は自動的に更新されます。
お客様との会議中にリアルタイムで間取り図を調整し、承認に必要なプロセスを加速します。
ワンクリックで2D間取り図を3Dに変換
2D間取り図の作成は住宅設計プロセスの第一段階です。Cedreoの間取り図ソフトウェアを使用すれば、2D間取り図を作成し、ワンクリックで3Dに変換することができます。
Cedreoの素材、家具、その他の装飾品を使って、3Dでの家のレイアウトを整えることができます。写真のような3D間取り図で、デザイン提案を一層引き立てます。

オールインワン2D間取りプランナー
Cedreoは、追加の拡張機能やプラグインを必要とせず、短時間で2D間取り図を作成できる全ての機能を提供します。

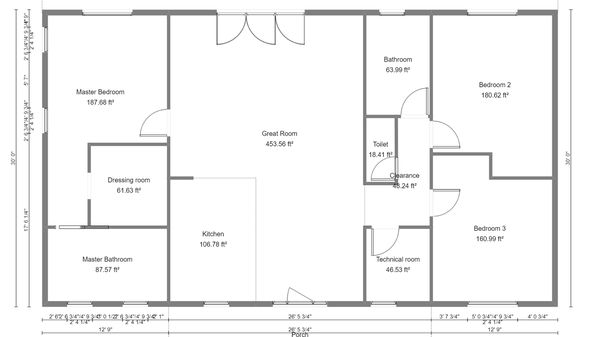
モノクロの2D間取り図
このシンプルなビューでは、家のレイアウトに焦点を当てることができます。部屋の名称、寸法、窓とドアの開口部、ドアの開き方向、壁、および壁の厚さが含まれています。

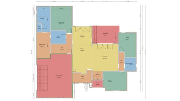
カラーコーディングによる2D間取り図
この間取り図は、部屋やエリアを色分けすることで一目で理解しやすくなっています。窓やドアの開口部は色分けされていないため、視覚的に際立ちます。

壁の種類別2D間取り図
このビューでは、内壁、内外の断熱壁、湿気の多い場所用の壁、間仕切りなど、すべての壁の種類を示しています。

家具付き2D間取り図
この2D間取り図は、主要な家具の配置を示しています。デザイナーは、お客様のフィードバックに基づいて家具のアイコンを迅速に移動または編集できます。

技術記号付き2D間取り図
ヒーター、洗濯機と乾燥機の接続口、給湯器、電気コンセントなど、家の重要な機能の配置を示す記号を追加できます。

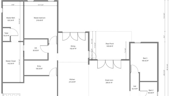
面積表
この表には、各部屋、各階、そして家全体の面積が表示されます。ポーチ、テラス、ガレージなどの付属エリアも含めることができます。
2D間取り図を正確に作成
Cedreoには、数分で明確で正確な2D間取り図を作成するために必要なすべての機能が備わっています。別のウィンドウで2Dレイアウトが3Dでどのように表現されるかを見ることができます。

オンラインで2D間取り図にアクセス
Cedreoは100%オンラインベースなので、どこにいてもデザインを変更することができます。必要なのはパソコンとインターネット接続だけです。

間取り図のインポート
既存の間取り図をインポートするか新しいプロジェクトを始めましょう。クリックとドラッグで耐荷重壁や間仕切りを連続して描けます。左クリックで素早く角や曲がり角を作成できます。

2Dで描いて3Dで確認
2Dで設計しながら、リアルなモデルを同時に確認できます。並列したウィンドウビューが設計プロセスをより明確にします。

外観レイアウトの作成
土地の境界線を描くか、土地の区画をインポートして敷地全体を視覚化します。

間取り図記号の追加
窓、壁、階段、家具などの要素を表す間取り図記号を追加します。

間取り図のサイズ変更
数クリックで間取り図全体のサイズを変更できます。最初からやり直す必要はありません。

寸法の追加
間取り図のサイドにあるわかりやすい表に寸法を追加し、重要な要素を記入して、すべての閲覧者が完成したデザインを正確にイメージできるようにします。

スケールに合わせて作成・印刷
数分でスケールに合わせた2D間取り図を作成、正確に印刷します。
よくあるご質問
2D間取り図とは何ですか?
2D間取り図は、敷地や建物の明確なビューを示す図面です。2D間取り図は、レイアウト、家具の配置、壁の種類、ドア、窓、景観、寸法などを伝えます。色分けされた間取り図は、部屋の種類や配置を区別するのに役立ちます。
2D間取り図と3D間取り図の違いは何ですか?
2D間取り図は、主に施工者がプロジェクトを完成させるために必要な技術的な側面を伝えるために使用されます。これには、耐荷重壁、壁の種類、窓やドアの開口方向、寸法などの詳細が含まれます。一方、3D間取り図は、よりリアルなビューを提供し、クライアントがデザイン要素がどのように連携するか、そして新しい空間での家具の配置がどのように見えるかを視覚化するのに役立ちます。
家全体の間取り図を作成できますか?
はい、 Cedreoは全体の家の間取り図をデザインすることができるます。全ての外壁を複製することで、上層階や地下室を迅速に追加し、全体の一貫性を保つことができます。
2Dと3Dの間取り図はどちらが良いですか?
2Dと3Dの間取り図は、それぞれ異なる目的を持っています。2D間取り図は壁の寸法やドアの開き方向などの技術的な詳細を表示するのに理想的です。これらはスケールに合わせてダウンロードや印刷が可能です。しかし、クライアントが読み解くのが難しいため、販売ツールとしては不十分なことが多いです。一方、家具が配置された3D間取り図は、家のレイアウトや動線の実際の感覚を提供します。