Nous avons rencontré Caroline Auger pour avoir son opinion sur Cedreo après plusieurs mois d’utilisation. Nous en avons profité pour lui demander pourquoi son choix s’est porté sur ce logiciel et ce qu’il lui apporte au quotidien.
Bonjour Caroline, pour commencer, est-ce que vous pouvez présenter votre activité ?
Bonjour, j’ai l’habitude de dire que je suis décoratrice d’intérieur mais c’est un peu plus que cela dans la réalité. Je travaille avec des marchands de biens qui me donnent pour mission de réhabiliter entièrement des villas des années 50 à 70 avant de les revendre ou d’être mises en location. L’idée, c’est de livrer le projet clé en main, ameublement compris. J’ai beaucoup de projets en zones classées et principalement du très haut de gamme dans le sud-est de la France sur des biens de 250m² en moyenne. Selon les projets, je peux être amenée à revoir entièrement la disposition des pièces, à repenser la décoration, à remettre les biens aux normes et, la plupart du temps, il s’agit de tout cela à la fois, d’une refonte totale de la maison.

Vous êtes seule à vous occuper de tout cela ?
Je travaille seule lors de la phase de conception mais je suis en lien étroit avec tous les artisans qui vont intervenir sur le projet. Je travaille aussi en collaboration avec des architectes sur les gros projets de rénovation ou d’extensions qui vont nécessiter un dépôt de permis.
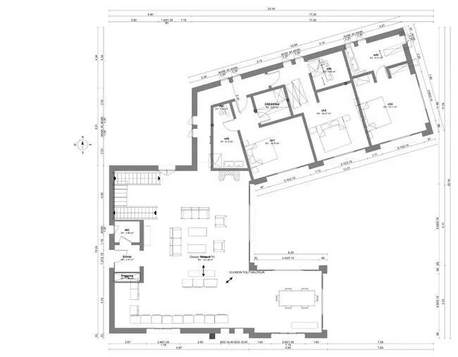
Les architectes vont aussi me fournir les plans dont je me sers comme base pour gérer le volume global et ensuite, c’est là que Cedreo intervient, je repense totalement le bien avec le logiciel.

Vous utilisez Cedreo depuis plusieurs mois, vous faisiez comment avant ?
Je me suis lancée dans une formation SketchUp mais même avec la formation, ça reste très compliqué. C’était à la fois énergivore et très consommateur de temps.
J’ai aussi testé HomeByMe. C’est simple d’utilisation, les rendus sont assez saisissants, mais le souci ce sont les mesures. En tous cas, ce n’est pas assez pointu pour élaborer les feuilles de route comme je l’entends pour les artisans.
C’est donc la promesse de simplicité et de précision qui vous a séduite chez Cedreo ?
Oui, tout à fait. Je voulais utiliser un logiciel qui soit à la fois facile à prendre en main et professionnel. L’idée de n’avoir qu’un seul logiciel pour la 2D et la 3D m’a aussi beaucoup séduite. On évite les sources d’erreurs lors du passage d’un logiciel à l’autre et cela permet vraiment d’envisager un projet dans sa globalité.
Et la promesse est-elle tenue ?
Plutôt, oui !
La modification des plans initiaux se fait facilement, c’est intuitif et la vue 3D nous permet d’appréhender le projet dans sa globalité, de se rendre compte à la fois des espaces et de la circulation.


« Je sors les plans 2D cotés et annotés avec Cedreo. Ils servent de base à toutes les réunions de chantier. L’idéal, c’est de fournir un dossier complet avec les plans d’exé pour que tout le monde soit sur la même longueur d’onde plus rapidement. »
Vous avez déjà plusieurs projets Cedreo au compteur. Quels bénéfices tirez-vous de son utilisation ?
Cedreo me permet de bien ficeler le projet dès la phase de conception. Sur le plan, je vois où se situent les contraintes techniques par exemple. Les prendre en compte dès le départ me permet de proposer des aménagements réalistes plus rapidement et donc de gagner du temps dans le processus d’aménagement intérieur.
Cedreo me permet aussi de collaborer plus facilement avec les autres corps de métier. En fournissant un plan précis du nouvel aménagement, on a une base claire pour dialoguer et la communication devient plus fluide. Cela me donne aussi plus de légitimité auprès de tous ces acteurs.
Merci Caroline. Est-ce que vous souhaitez ajouter un dernier mot ?
Je crois que je n’ai pas encore exploré toutes les fonctionnalités de Cedreo mais je suis très satisfaite de ce que je peux en tirer. Ça répond à mes besoins d’aujourd’hui, ça correspond à ma manière de travailler et à mon niveau d’informatique !
Merci beaucoup pour le temps accordé pour cet échange ! Nous vous souhaitons de beaux projets de rénovation.