Le plan de masse coté est plus qu’une simple formalité. Ce document joue un rôle essentiel dans les démarches administratives (dossier de permis de construire ou déclaration préalable de travaux) comme dans la communication avec les clients.
Pourtant, pour nombre de professionnels de la construction et maîtres d’œuvre, réaliser un plan de masse conforme aux règles, précis et facilement compréhensible représente souvent un véritable défi. Entre la gestion des aspects techniques, les exigences réglementaires et les attentes des clients, cette tâche peut devenir complexe et chronophage.
Dans cet article, nous vous livrons nos astuces pratiques pour réaliser un plan de masse coté de manière simple et efficace.
Qu’est-ce qu’un plan de masse coté ?
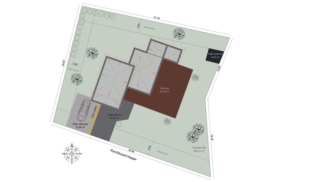
C’est une représentation précise en vue aérienne d’un terrain où sont indiquées les dimensions des différents éléments du projet.
Contrairement au plan de situation, qui offre une vue globale de la parcelle dans le quartier ou la commune, le plan de masse se concentre sur les détails du terrain pour visualiser l’implantation exacte des constructions, infrastructures et aménagements extérieurs.

C’est un élément clé pour les démarches administratives, comme le dossier de permis de construire ou de déclaration préalable de travaux.
Pour répondre aux exigences fixées par le Code de l’Urbanisme (article R.431-9), il doit inclure des dimensions précises, appelées cotes, notamment pour assurer la conformité au plan local d’urbanisme (PLU) en matière de marges de recul, d’emprises au sol et de hauteurs autorisées pour les constructions projetées.
Quelles différences avec un plan de masse coté en 3 dimensions ?
La spécificité d’un plan de masse coté en 3 dimensions réside dans l’intégration de l’altimétrie comme troisième dimension.
Grâce aux cotes NGF (Nivellement Général de la France), on peut visualiser précisément le relief et la topographie du terrain naturel. Ces cotes permettent de représenter les variations d’altitude, les pentes, les dénivelés et les caractéristiques topographiques avec une grande précision.
Les logiciels professionnels tout-en-un, comme Cedreo, offrent un avantage considérable : la possibilité de travailler simultanément en 2D et 3D. À partir d’un plan de masse complet intégrant toutes les dimensions, les concepteurs peuvent dessiner directement le projet en trois dimensions, en l’intégrant dans son contexte topographique réel.

Une méthode qui offre un double bénéfice : gagner un temps précieux dans la phase de conception et une visualisation instantanée et précise du projet dans son environnement.
Quelles sont les utilisations d’un plan de masse coté ?
Pour les démarches administratives
Document garantissant la conformité aux règles d’urbanisme, c’est une des pièces obligatoires pour la demande de permis de construire et déclaration préalable de travaux.
Il doit décrire l’état actuel du terrain avec les constructions existantes et exposer le futur projet (dimensions, distances, hauteurs, emprises au sol).
En phase préparatoire
Il permet d’obtenir une vue de l’implantation du bâtiment, d’organiser les raccordements aux réseaux techniques, notamment au réseau électrique, de planifier les espaces extérieurs et d’anticiper les contraintes spécifiques du terrain naturel.
Sa précision facilite la coordination des différents intervenants et optimise la phase de conception.
Pour la communication client
Le plan de masse est aussi un très bon outil de communication. Grâce aux rendus 3D réalistes, il offre une projection immédiate et tangible du projet de construction.
Les clients peuvent visualiser leur future maison dans son environnement exact, fluidifiant les échanges et renforçant la compréhension mutuelle.
Les logiciels professionnels tout-en-un, capables de produire simultanément des plans 2D et 3D, vous permettent de générer des documents précis, techniques et visuellement impactants pour répondre aux exigences administratives comme aux attentes des clients.

Quels éléments essentiels mettre sur un plan de masse coté ?
Dans le cadre d’une demande de permis de construire, le dessin d’un plan de masse doit intégrer des informations détaillées et réglementaires. Ces éléments constituent ensemble la base d’une représentation exhaustive du projet architectural et de son environnement, conformément à la définition du plan de masse.
Les éléments essentiels à faire figurer sur le plan de masse
- Constructions existantes et projetées : dimensions (longueur, profondeur et hauteur), y compris les extensions ou annexes prévues (par exemple les abris de jardin).
- Limites du terrain : bornage, distances aux propriétés voisines, emplacement des clôtures.
- Relief et altitudes : cotes NGF pour représenter les dénivelés du terrain.
- Réseaux et accès : position des raccordements publics et privés, chemins d’accès.
- Extérieurs : terrasses, piscines, plantations, végétation, parkings, etc.
- Annotations : orientation du Nord, échelle, légende.

Pourquoi et comment les intégrer rapidement sur le plan de masse ?
Les omissions ou erreurs présentes dans les documents graphiques peuvent soulever des questions lors de l’instruction du dossier par les services d’urbanisme, entraînant retards, modifications via un PC2 ou des refus.
Pour intégrer facilement les constructions et leurs dimensions exactes, des logiciels spécialisés proposent des outils de mesure intuitifs. Par exemple, Cedreo permet de modéliser un terrain et de créer un plan de masse précis en moins de 20 minutes. Cela facilite la préparation des dossiers administratifs en produisant des documents conformes aux réglementations et prêts à être déposés.
Comment obtenir un plan coté dans les 3 dimensions ?
1. Faire appel à un professionnel externe
Faire appel à un géomètre-expert est une étape incontournable pour obtenir des relevés topographiques précis, des cotes NGF et une délimitation exacte de la parcelle grâce à des équipements spécialisés.
Une fois ces données collectées, elles peuvent ensuite être confiées à des dessinateurs en bâtiment, architectes ou entreprises spécialisées pour élaborer le plan de masse final, intégrant les constructions projetées, les accès et les aménagements.
Cette solution garantit un résultat précis et conforme, idéal pour s’assurer de la validité du dossier administratif. Externaliser implique un coût, généralement compris entre 500 € et 1 500 € par projet, selon la complexité et la taille du projet.
2. Faire un plan de masse soi-même avec un logiciel DAO
Pour obtenir un plan de masse gratuit, vous pouvez le réaliser vous-même. Cette méthode consiste à télécharger le plan cadastral de la parcelle sur cadastre.gouv.fr, puis à intégrer les données dans un logiciel de dessin assisté par ordinateur (par exemple AutoCAD) pour tracer un plan à l’échelle, incluant la longueur et la profondeur des éléments.
Cette approche exige du temps et des compétences techniques. C’est une solution économique mais chronophage, qui peut s’avérer difficile à gérer sans une expertise préalable.
3. Utiliser un logiciel intuitif comme Cedreo
Pour les professionnels souhaitant une solution rapide et économique, les logiciels dédiés aux constructeurs de maisons et maîtres d’œuvre, comme Cedreo, offrent une alternative idéale.
Ces outils métiers intuitifs répondent aux principales questions des professionnels concernant la conception de plans de masse côtés en trois dimensions et leur mise en forme.
Cedreo permet, par exemple, d’importer directement des plans cadastraux ou des relevés (au format pdf, jpg, png, dwg ou dxf) puis de modéliser facilement le terrain en 3D en intégrant les cotes NGF.
En quelques clics, vous pouvez représenter les dénivelés, ajuster le relief et créer un plan de masse complet avec toutes les informations, prêt à être utilisé pour des démarches administratives ou pour des présentations clients.

Gagnez du temps avec un logiciel complet pour créer vos plans rapidement
Le plan masse constitue un élément clé pour tous les projets de constructions ou de rénovations. Essentiel pour les démarches administratives, sa réalisation peut s’avérer complexe et chronophage.
Cedreo, logiciel de plan de masse, révolutionne cette étape en vous proposant une solution de modélisation intuitive du terrain en 3D.
Des fonctionnalités puissantes pour obtenir rapidement un plan de masse coté dans les 3 dimensions
Avec les outils intégrés de Cedreo, en seulement quelques clics, vous pouvez :
- Importer un plan cadastral ou un relevé topographique.
- Modifier les dénivelés du terrain.
- Ajouter des éléments complexes tels que des talutages, des murs de soutènement, ou des bordures.
- Représenter clairement les zones de terrain fini.
- Automatiser des tâches techniques comme le déblai/remblai ou la création de bordures.

Une fois la modélisation achevée, vous pouvez ajuster l’échelle d’un plan pour l’exporter dans différents formats, prêts à être utilisés comme plan coté pour vos démarches administratives ou vos présentations.
Une gestion intuitive de l’altimétrie pour des projets précis
Grâce à sa gestion avancée de l’altimétrie, Cedreo vous permet de :
- Ajuster les dénivelés : Modifiez les points d’élévation du terrain pour représenter fidèlement les pentes et hauteurs.
- Créer des retenues de terre : Ajoutez des talutages et des murs de soutènement pour modéliser les variations de terrain.
- Visualiser en temps réel : Contrôlez le tracé en 2D avec une visualisation simultanée en 3D, assurant une précision et une cohérence dans la représentation du terrain.
En moins de 20 minutes, vous créez un plan de masse complet tout en personnalisant le terrain avec des détails d’aménagements extérieurs grâce à une vaste bibliothèque d’éléments.

Ajoutez à cela des rendus 3D photoréalistes qui aident vos clients à mieux se projeter, accélèrent leur prise de décision, et valorisent vos projets de manière professionnelle.
Avec Cedreo, vous avez désormais les clés en main pour créer rapidement un plan de masse conforme, adapté aux règles administratives et aux attentes de vos clients.