À chaque nouveau projet de construction, la même question se pose : dans cette configuration, faut-il déposer un permis de construire ou une déclaration préalable de travaux ? Derrière cette interrogation, se cache en réalité un enjeu plus grand pour les professionnels du bâtiment. Car une erreur de procédure, c’est du temps perdu, un dossier à reprendre, un calendrier à recaler, et parfois une perte de confiance côté client.
Maîtriser les règles d’urbanisme est au contraire un vrai levier de performance. Cette compétence vous aide à concevoir plus intelligemment, à gagner du temps sur l’instruction, à réduire les allers-retours avec les services de la mairie, et surtout, à démontrer votre professionnalisme dès les premiers échanges.
Dans cet article, découvrez les critères à vérifier systématiquement pour faire le bon choix entre DP et PC. Vous trouverez également des exemples concrets, des astuces méconnues et des conseils pour optimiser votre méthode de travail avec Cedreo.
Points clés à retenir
- La surface créée et les seuils réglementaires : les projets jusqu’à 20 m² (40 m² en zone urbaine d’un PLU) nécessitent une déclaration préalable. Au-delà, un permis de construire devient obligatoire.
- La nature des travaux et les cas particuliers: certains projets comme les piscines non couvertes de plus de 100 m² requièrent un permis de construire, alors que d’autres comme les modifications de façade peuvent se contenter d’une déclaration préalable, indépendamment de leur superficie.
- La localisation du projet : un projet n’exige pas les mêmes formalités selon qu’il se situe en zone urbaine, à proximité d’un monument historique ou dans un secteur protégé.
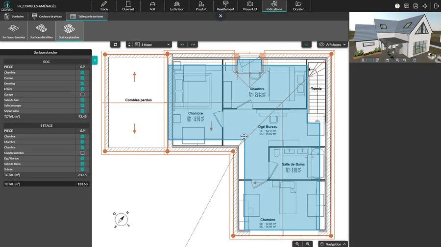
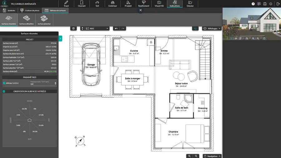
- L’optimisation du projet avec Cedreo : le logiciel calcule automatiquement les surfaces de vos projets, génère tous les plans nécessaires aux autorisations d’urbanisme et permet d’anticiper la bonne démarche administrative dès la conception, limitant ainsi les risques d’erreur et les allers-retours avec l’administration.
Quelle autorisation d’urbanisme pour votre projet : l’importance de faire le bon choix dès le départ

(S’attendre à) déposer une déclaration préalable (DP) à la place d’un permis de construire (PC) – ou inversement – a des conséquences concrètes sur le déroulement de vos projets. Des effets qui ne se limitent pas à remplacer une formalité administrative par une autre.
En termes de calendrier prévisionnel, une mauvaise évaluation peut rallonger les délais d’instruction, nécessiter un nouveau dépôt, ou désorganiser complètement les plannings d’intervention de vos entreprises.
Bien connaître les seuils réglementaires peut aussi présenter quelques avantages. Vous pouvez orienter certaines décisions dès la conception. Par exemple, une extension de 19 m² (plutôt que 21 m²) en zone non urbaine peut suffire à maintenir votre projet dans le cadre d’une simple déclaration préalable. À gagner : une procédure plus simple, un dossier allégé et un délai d’instruction réduit à un mois.
Permis de construire ou déclaration préalable ? Les trois critères à vérifier pour ne pas se tromper
1. La surface de plancher ou d’emprise au sol créée
Pour commencer, vous devez calculer les surfaces créées par votre projet (au sens réglementaire du terme) : la surface de plancher et l’emprise au sol.
Précision importante : ce sont bien les nouvelles surfaces qui déclenchent ou non une obligation d’autorisation. On parle donc de construction neuve ou d’extension d’un bâtiment existant. Des travaux de rénovation, même sur une grande superficie, n’exigent pas obligatoirement de déclaration en mairie s’ils ne créent pas de surface supplémentaire.
Pour savoir si votre projet exige un permis de construire ou une déclaration préalable de travaux, voici les seuils à retenir :
- Nouvelle construction ≤ 5 m² : aucune démarche n’est requise.
- Construction ou extension entre 5 m² et 20 m² (jusqu’à 40 m² en zone urbaine d’un PLU) : nécessite une déclaration préalable de travaux (DP).
- Construction ou extension au-delà de 20 m² (40 m² en zone urbaine d’un PLU) : exige un permis de construire (PC).
- Extension qui porte la surface totale d’un bâtiment à plus de 150 m² : la demande de permis de construire est obligatoire. Le recours à un architecte est aussi imposé (si le maître d’ouvrage est un particulier).
Avec Cedreo, la surface de plancher et l’emprise au sol sont calculées automatiquement à partir de vos plans 2D, selon les définitions réglementaires en vigueur. L’avantage pour vous ? Un précieux gain de temps au quotidien et un gage de sécurité lors du dépôt de vos dossiers.

2. La nature des travaux
Les caractéristiques intrinsèques du projet orientent parfois le choix entre un permis de construire et une déclaration préalable. Certains types de travaux exigent une autorisation d’urbanisme en raison de leur impact élevé soit sur le bâtiment, soit sur leur environnement.
Un permis de construire est par exemple requis pour :
- la construction d’une piscine non couverte de plus de 100 m² ;
- la réalisation d’un bâtiment annexe (non accolé au volume principal) de plus de 20 m² : garage, carport, abri de jardin ou atelier indépendant.
Une déclaration préalable de travaux suffit en revanche dans d’autres situations (sous réserve de ne pas dépasser les seuils surfaciques) :
- la transformation d’un garage de plus de 5 m² en pièce habitable, avec ou sans modification de façade ;
- l’installation d’une fenêtre de toit, le remplacement de menuiseries ou la création de nouvelles ouvertures ;
- le ravalement de façade avec modification de l’aspect extérieur.
Toutes ces règles sont encadrées par le Code de l’urbanisme et détaillées sur le site du service public. Pensez à vérifier les particularités liées aux secteurs sauvegardés ou aux prescriptions du plan local d’urbanisme (PLU) de votre commune.
3. La localisation du projet
Un même projet ne demande pas les mêmes formalités selon que le terrain se situe :
- en zone urbaine couverte par un PLU
- en site patrimonial remarquable
- à proximité d’un monument historique
- dans un parc national
Dans certaines de ces zones, l’avis de l’ABF (architecte des bâtiments de France) est requis, et le délai d’instruction peut être prolongé. Dans d’autres secteurs, les procédures sont rallongées en raison d’études techniques plus poussées à réaliser.
Pour connaître toutes les règles applicables à un terrain, le certificat d’urbanisme est une source d’information précieuse, mais souvent oubliée.
Les cas particuliers à connaître pour choisir entre un PC et une DP
Changement de destination
Le changement de destination consiste à modifier l’usage initial d’un bâtiment. Voici quelques exemples :
- transformer une grange agricole en habitation
- rénover un local commercial en logement
- réserver une partie d’un logement pour un local professionnel
Le Code de l’urbanisme divise les usages en 5 catégories de destination. Les travaux qui consistent à passer d’une destination à une autre sont soumis à autorisation d’urbanisme. Mais faut-il déposer un dossier de permis de construire ou une déclaration préalable ? Voici ce qu’il faut retenir :
- Pour un changement de destination sans modification de façade ou structure porteuse : une demande de déclaration préalable (DP) est exigée.
- Pour un changement de destination avec modification de façade ou de structure porteuse : un permis de construire (PC) est requis.
Changement de destination vers un établissement recevant du public (ERP)
Votre changement de destination vise à ouvrir un établissement recevant du public (commerce, cabinet médical, restaurant) ? Alors, des formalités supplémentaires s’appliquent, indépendamment du permis de construire ou de la déclaration de travaux :
- Le dépôt d’une autorisation de travaux (AT) en mairie. Elle vise à garantir l’accessibilité de votre aménagement intérieur et la sécurité incendie du local.
- Une demande spécifique éventuelle pour l’installation d’une enseigne.
Travaux mineurs soumis à autorisation
Souvent, les rénovations d’ouvrages existants peuvent sembler dispensées de formalités administratives car ils sont considérés comme mineurs. Mais parfois, ils nécessitent pourtant bien une autorisation d’urbanisme (souvent une déclaration préalable). Voici quelques cas de figure à connaître :
- Les travaux sur constructions existantes sans création de surface : ils sont soumis à déclaration préalable s’ils modifient l’aspect extérieur du bâtiment. C’est par exemple le cas de la pose d’un bardage, d’un changement de matériau de toiture, ou même de la peinture des volets dans certaines communes.
- L’installation d’une clôture ou d’un portail : le type de clôture (mur plein, grillage, haie végétale), sa hauteur, sa couleur ou son emplacement sont habituellement encadrés par le plan local d’urbanisme. À ce titre, ils sont soumis à déclaration, tout comme les travaux en façade.
- Les panneaux solaires et équipements techniques : l’ajout de panneaux solaires sur toiture ou au sol, d’une pompe à chaleur visible ou d’un auvent sont des installations qui doivent être approuvées par la mairie.
Tout projet visible depuis l’espace public ou susceptible de modifier l’aspect d’un terrain ou d’un bâtiment doit faire l’objet d’un questionnement réglementaire. En cas de doute, un contact direct avec le service urbanisme de la mairie est souvent le meilleur réflexe à adopter. Certaines communes sont en effet plus souples que d’autres.
Simplifiez vos demandes d’autorisations d’urbanisme avec Cedreo
Produire un dossier de permis de construire ou de déclaration préalable complet, cohérent et conforme est loin d’être une tâche standardisée. Elle demande de la réflexion et des vérifications permanentes.
L’utilisation d’un logiciel comme Cedreo peut vous permettre de limiter le risque d’erreurs, d’allers-retours administratifs, aller plus vite et vous concentrer pleinement sur la conception, l’optimisation technique et la satisfaction de vos clients.
Créez tous vos plans réglementaires

Les fonctionnalités de Cedreo sont pensées pour créer plus simplement les différents documents graphiques obligatoires des dossiers administratifs :
- plan de masse conforme aux exigences du PLU ;
- plans de coupe et de façades clairs et attractifs ;
- insertion paysagère réaliste à partir d’une photo du terrain
- perspectives 3D du projet pour valoriser son intégration dans l’environnement.
Insérez ensuite tous ces plans dans vos documents de présentation personnalisés et configurés aux échelles standards. L’objectif est de constituer un dossier clair et conforme aux attentes des services d’urbanisme.
Automatisez la mise à jour de vos documents

En tant que constructeurs de maisons ou maîtres d’œuvre, vous savez certainement qu’un projet est (très) souvent ponctué de modifications et adaptations diverses. Avec Cedreo, chaque changement est automatiquement répercuté sur toutes les vues associées (façades, coupes, plans 2D). Cela vous permet de garantir la cohérence de votre dossier dans sa globalité, sans avoir à passer en revue chacune des pièces graphiques déjà réalisées.
Anticipez les bonnes démarches administratives

Grâce aux calculs automatiques de surface de plancher, d’emprise au sol et autres indicateurs réglementaires, vous savez immédiatement si votre projet bascule dans le champ du permis de construire ou s’il peut rester sous le seuil de la déclaration préalable. Vous pouvez ainsi adapter vos choix architecturaux en toute connaissance de cause, dès les premières phases de l’opération.Avec des projets mieux encadrés dès le départ et un risque d’erreur réduit, Cedreo vous aide à valoriser votre expertise professionnelle auprès de vos clients, des instructeurs et de vos partenaires.