Plans d’implantation électrique, schémas unifilaires, plans de câblage : chacun de ces documents techniques repose sur une représentation graphique précise et claire. Mais pour qu’ils soient compris de tous, la clarté ne suffit pas, il faut aussi que chaque professionnel parle le même langage. Et pour cela, les symboles électriques utilisés doivent donc répondre à une codification graphique précise.
Quels symboles électriques devez-vous absolument intégrer à vos plans électriques ? Pourquoi faut-il les représenter de manière homogène ? Comment éviter les erreurs de compréhension et assurer une installation conforme par votre électricien ? Dans cet article, découvrez tous nos conseils pour représenter comme il se doit votre installation électrique.
Points clés à retenir
- Les symboles électriques répondant à une réglementation précise: les symboles doivent être conformes aux standards, la norme exige des documents lisibles et exploitables par tout professionnel.
- La standardisation des symboles: elle renforce la sécurité en évitant les erreurs d’interprétation lors des travaux, permet un gain de temps considérable dans la lecture des plans, et facilite les échanges entre les différents intervenants d’un projet.
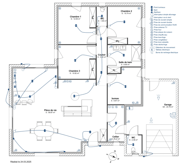
- Une représentation spécifique pour chaque symbole: les prises de courant sont généralement symbolisées par un cercle contenant trois points en triangle, les interrupteurs par un cercle avec un trait oblique, les points lumineux par des cercles et le tableau électrique par un rectangle contenant un éclair.
- L’utilisation d’un outil comme Cedreo pour la création de schémas électriques: la bibliothèque de symboles électriques conformes aux normes avec des possibilités de personnalisation avancée (taille, forme, couleur) pour adapter les schémas à l’identité professionnelle et aux spécificités de chaque projet.
Les symboles pour schémas électriques normalisés : quelle réglementation respecter pour vos plans architecturaux ?
En France, la NF C 15-100 n’impose pas de codification graphique spécifique pour chacun des éléments électriques qui composent une construction. En revanche, elle impose :
- de réaliser des documents graphiques (implantation, schémas de câblage) lisibles, compréhensibles et exploitables par tout professionnel ;
- d’utiliser des symboles électriques clairs, univoques et conformes aux pratiques de représentation reconnues comme standards ;
- de représenter les circuits, conducteurs, équipements, protections et commandes de manière cohérente sur l’ensemble des documents techniques.
À l’échelle internationale, les symboles électriques sont définis et homogénéisés par la norme IEC 60617 (commission électrotechnique internationale). Ce standard est régulièrement mis à jour, mais il propose déjà plus de 1 400 symboles électriques ! Largement de quoi couvrir l’ensemble des besoins pour vos schémas électriques usuels.
Pourquoi la standardisation des symboles électriques est-elle indispensable ?

Au-delà d’une « simple » conformité réglementaire, les symboles d’électricité standardisés sont essentiels pour plusieurs raisons :
- Plus de sécurité : une lecture claire des schémas et symboles électriques évite les erreurs d’interprétation, d’implantation et de mise en œuvre lors des travaux. Et une installation en règle, ce sont des accidents domestiques évités.
- Un gain de temps : un plan standardisé et bien représenté est compris en un clin d’œil, sans avoir à identifier individuellement chaque équipement. C’est vrai sur le chantier, mais aussi lors des différentes phases de contrôle (Consuel, bureaux de contrôle).
- Des échanges facilités : un projet peut être suivi par plusieurs intervenants successifs à condition qu’ils parlent le même langage. Grâce aux symboles électriques universels, c’est possible. Chaque professionnel retrouve rapidement ses repères sans avoir à se familiariser avec une nouvelle légende.
Pour vos schémas électriques, respecter les conventions graphiques n’est pas une option. C’est aussi une marque de sérieux, de rigueur et un véritable levier pour améliorer la communication entre intervenants.
Les principaux types de symboles électriques et schémas à maîtriser
Connaître et savoir exactement quel symbole électrique utiliser est fondamental pour créer (rapidement) un plan électrique de maison clair. Voici les principaux éléments et informations à insérer dans vos schémas électriques.
Les symboles de prise de courant

Le symbole de la prise électrique est omniprésent dans tous les types de projets. Chaque nature de prise dispose de sa représentation normalisée pour une meilleure identification. En voici quelques exemples :
- Prise de courant standard : cercle contenant trois points disposés en triangle (représentant les fils de phase, neutre et la terre).
- Prise de courant spécialisée (lave-vaisselle, four) : symbole standard ou cercle avec une annotation précisant l’usage (LL, LV, FOUR, etc.) et éventuellement l’ampérage associé.
- Prise USB : la pratique courante est d’utiliser le symbole électrique de prise standard ou un cercle accompagné d’une annotation « USB ».
Lorsque les hauteurs des prises de courant ne sont pas « standards », n’hésitez pas à indiquer sur votre plan électrique la hauteur d’implantation à respecter.
Les symboles des interrupteurs et commandes d’éclairage

Les interrupteurs commandent les différents points lumineux et doivent être implantés de manière fonctionnelle (à chaque entrée de pièce par exemple). Il est également courant de faire apparaître les différents circuits d’éclairage à l’aide de lignes courbes qui relient chaque interrupteur aux luminaires qu’il commande.
En fonction de leur mode de commande et du nombre de lumières qu’ils actionnent, il existe plusieurs symboles électriques :
- Symbole des interrupteurs simple allumage : cercle avec un trait oblique (deux traits obliques pour l’interrupteur double allumage).
- Schéma du va-et-vient (permet d’allumer ou d’éteindre un appareil lumineux depuis deux emplacements différents) : cercle barré entièrement d’une barre oblique.
- Interrupteur avec variateur de lumière : même symbole que l’interrupteur simple, enrichi d’une flèche en direction de l’intérieur.
Points lumineux et circuits d’éclairage

Les appareils lumineux doivent être judicieusement répartis (en position et en nombre) pour garantir un confort visuel optimal dans toutes les pièces. Voici des exemples de symboles standards à utiliser :
- Plafonnier : simple cercle (barré ou non).
- Applique murale : demi-cercle.
- Spot lumineux : cercle barré et éventuellement hachuré pour le différencier d’un plafonnier classique.
Notre conseil : pensez à l’utilisation de symboles électriques différents pour vos appareils lumineux étanches en extérieur ou en pièce humide. Ajoutez la référence « ET » ou choisissez une hachure différente pour indiquer cette caractéristique.
Symboles du tableau électrique

La représentation du tableau électrique doit être explicite et bien mise en évidence sur les schémas électriques. Quant à sa position, elle doit permettre d’optimiser l’ensemble du câblage. En effet, l’intégralité des circuits électriques démarre du tableau pour ensuite se diviser dans toutes les directions jusqu’aux différentes pièces de la maison.
Le symbole du tableau électrique est souvent constitué d’un rectangle contenant à l’intérieur soit un petit éclair (représentant le courant électrique), soit l’inscription « TGBT » (tableau électrique basse tension).
Équipements électriques spéciaux à représenter

Lorsque les prises de courant, les interrupteurs et les sources lumineuses sont représentés, d’autres appareils doivent être positionnés sur vos plans électriques. Pour une parfaite compréhension de l’installation globale, voici quelques dispositifs supplémentaires à faire apparaître :
- Chauffe-eau électrique : symbole de réservoir (cercle) avec hachures verticales et annotation « CE » (chauffe-eau) ou « ECS » (eau chaude sanitaire).
- Domotique, alarmes, systèmes connectés : symboles génériques précisés par une indication textuelle (box domotique, alarme intrusion, etc.).
- Alimentations électriques diverses : un éclair fléché représentant le courant électrique, avec éventuellement l’indication du dispositif à alimenter (store motorisé par exemple).
- Symbole de radiateur électrique : forme rectangulaire ou réglette accompagnée de sa puissance en Watts.
Utilisez Cedreo pour faciliter la création de vos schémas électriques
Une bibliothèque complète de symboles électriques
Avec le Cedreo, vous êtes sûr de travailler à partir de symboles électriques conformes et régulièrement mis à jour pour intégrer les évolutions normatives. Cedreo met à votre disposition une bibliothèque de symboles électriques exhaustive.

Vous y trouverez tous les éléments indispensables à vos projets : symboles de prises de courant standards et spécialisées, interrupteurs simples ou plus complexes, points lumineux, tableaux électriques, équipements domotiques et bien plus encore.
Un véritable atout et gain de temps pour les pièces graphiques de vos projets ! En quelques clics, composez des schémas électriques clairs et directement exploitables par vos clients et toutes les personnes présentes sur le chantier.
Une personnalisation avancée de tous les symboles disponibles
Avec Cedreo, les symboles électriques sont pré-configurés pour plus de simplicité. Mais vous pouvez les personnaliser pour les adapter à votre identité professionnelle et aux spécificités de chaque opération.
Taille, forme, couleur ou échelle : harmonisez vos schémas avec votre charte graphique interne, renforcez la cohérence de vos dossiers ou différenciez les circuits électriques par couleurs pour une meilleure lecture.

Et pour encore plus d’efficacité au quotidien, ajoutez vos symboles électriques récurrents en favoris. Vous les retrouverez immédiatement sans avoir à parcourir l’ensemble de la bibliothèque à chaque nouveau plan électrique.Vos schémas électriques deviennent de véritables outils de communication professionnelle. Chaque fonctionnalité est pensée pour améliorer la qualité de vos documents et vous faire gagner du temps au quotidien.