Tanto si eres un profesional experimentado diseñando cocinas de ensueño para tus clientes, como si eres un propietario enfrascado en la renovación de tu propia cocina, el programa adecuado puede marcar una gran diferencia.Esta guía completa explora los 10 mejores programas para diseñar cocinas integrales de 2025. Desde opciones gratuitas hasta suites de nivel profesional, te tenemos cubierto. Descubre cómo estas herramientas pueden transformar tu proceso de diseño de cocinas, haciéndolo más eficiente, creativo y rentable.
Descubre Cómo Puedes Desarrollar Proyectos Integrales con Cedreo

Planificación Completa: Crea planos de sitio, planos 2D, instalaciones eléctricas, cortes y alzados, con toda la información técnica esencial para una perspectiva detallada del proyecto.
Imágenes 3D Impactantes: Usa renders 3D de interiores y exteriores, además de planos 3D, para que tus clientes visualicen el resultado final desde el primer día.
Gestión Documental Sencilla: Centraliza todos tus documentos visuales para presentar y vender tus proyectos de manera más eficiente.
No se requiere tarjeta de crédito, sin compromiso.
Por qué los Profesionales usan Programas de Diseño de Cocinas – 3 Razones
Los profesionales de la industria de la vivienda se están inclinando cada vez más por herramientas de diseño de cocinas, y no se trata solo de mantenerse al día con la tecnología. Estos programas revolucionan su enfoque en el diseño.
- Eficiencia optimizada y precisión inigualable: Imagina reducir el tiempo de diseño mientras aumentas la precisión. Eso es lo que aporta el programa de diseño de cocinas. No se trata solo de agilizar los diseños, sino también de asegurar que cada medición sea exacta. Esta combinación de velocidad y precisión es un cambio radical para cualquier proyecto.
- Dando vida a las ideas con visualizaciones en 3D: A menudo, a los clientes les cuesta visualizar una cocina terminada a partir de planos en 2D. Ahí es donde entra el programa de diseño de cocinas. Transforma los bocetos en modelos realistas en 3D. Estas representaciones vívidas ayudan a los clientes a ver su futura cocina, lo que hace que la toma de decisiones sea más fluida e interactiva.
- Colaboración simplificada: El diseño rara vez es un esfuerzo individual. El mejor programa de diseño de cocina fomenta un entorno colaborativo, donde compartir ideas y recibir comentarios de los clientes es sencillo. Esta línea abierta de comunicación asegura que el diseño final refleje verdaderamente la visión del cliente.
Entonces, ¿qué deberías buscar en un programa de diseño de cocina?
Características Clave que Necesitas en tu Programa de Diseño de Cocinas
Cada programa de nuestra lista ofrece un conjunto diferente de funciones. Antes de decidirte, piensa bien cómo vas a usar el software. Así te aseguras de elegir uno que incluya todo lo que realmente necesitas.
En 2025, estas son las funciones más buscadas por los profesionales:
Herramienta Sencilla para Crear Planos de Planta

Cualquier diseño de cocina comienza con la distribución básica de la estancia. Por eso, busca un programa que te permita crear fácilmente un plano en 2D con paredes, ventanas y puertas.número 1 en la siguiente sección.
Renderizados 3D realistas

A los clientes les encanta (y en 2025 ya lo esperan) ver imágenes en 3D de sus futuros diseños de cocina. Por eso conviene invertir en un programa que facilite la creación de imágenes realistas que muestren colores de pared, electrodomésticos, puertas, ventanas, efectos de luz natural y mobiliario como armarios o alacenas.
Librerías de Productos completas

Asegúrate de que el software incluya los tipos de productos que sueles usar en tus proyectos de cocina: mobiliario, decoración, armarios, electrodomésticos, suelos, grifería y más.
Atención al Cliente
No querrás que tu negocio se paralice esperando días una respuesta del servicio de soporte. Así que busca un programa que te permita resolver tus dudas de forma ágil a través de chat o email con un equipo real y receptivo.
Echa un vistazo a la siguiente sección con 9 programas para diseñar cocinas online que ofrecen la mejor combinación de estas funciones.
Los mejores programas de diseño de cocinas
Aquí hemos detallado los principales casos de uso, las características más importantes y la información clave de 10 de las mejores herramientas de diseño de cocinas, para que puedas elegir la adecuada para ti y tu negocio.
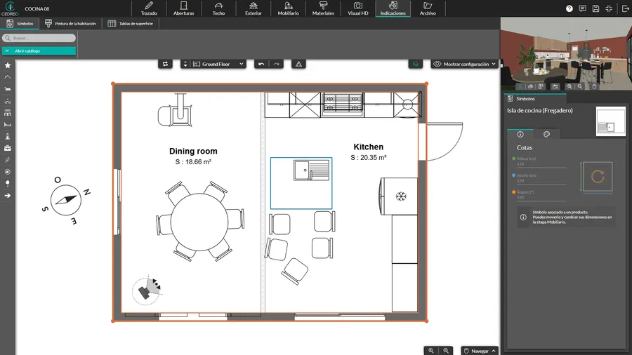
1. Cedreo

Ideal para: Constructores de viviendas, empresas de reformas y diseñadores de interiores
Cedreo es uno de los mejores programas para hacer planos del mercado. Su planificador de cocinas potente y fácil de usar, creado específicamente para profesionales en la construcción de viviendas, remodelación y diseño. Se destaca por su capacidad de agilizar todo el proceso de diseño, desde el concepto inicial hasta la presentación final.
Con Cedreo, diseñadores como tú pueden crear rápidamente planos de cocinas detallados y producir impresionantes renders 3D, gestionando eficientemente los proyectos.
Una de sus características más notables es su capacidad de renderizado 3D rápido y de alta calidad, lo cual te ayuda a presentar visualizaciones realistas a los clientes con facilidad. Esta característica no solo mejora la comunicación con tus clientes, sino que también ayuda a tomar decisiones de diseño más rápidamente. Además, Cedreo ofrece una extensa librería de elementos personalizables, atendiendo a una amplia gama de estilos y preferencias. Esto facilita la adaptación de los diseños a las necesidades de tus clientes.

La interfaz intuitiva de Cedreo también está diseñada para un aprendizaje rápido. Eso significa que incluso si eres nuevo en el diseño 3D, puedes volverte competente en el uso del programa con una formación mínima.
Esta facilidad de uso, combinada con características avanzadas como herramientas de dibujo inteligentes y una librería de productos completa, hace de Cedreo la opción principal para profesionales que buscan elevar sus ofertas de diseño de cocina.
Pros:
- Interfaz intuitiva adecuada para un aprendizaje y uso rápidos
- Render 3D de alta calidad y rápido para presentaciones visuales realistas
- Librería de productos extensa y personalizable para diversas necesidades de diseño
- Programa de diseño de interiores completo
- Disponible en español, inglés, francés y alemán.
Contras:
- No permite diseñar tus propios muebles de cocina.
Características principales:
- Crear un conjunto completo de planos 2D y 3D en tan solo 2 horas
- Obtener renders 3D de alta calidad en 5 minutos o menos
- Acceder a una librería de más de 10,000 decoraciones y materiales para el hogar personalizables
- Importar planos
- Modificar la orientación de la luz
- Herramientas inteligentes para optimizar tu flujo de trabajo
- Compartir proyectos de diseño de cocinas con el equipo
- Obtener sesiones de capacitación individualizadas y soporte telefónico
¡La combinación de facilidad de uso y capacidades avanzadas de Cedreo lo convierte en una herramienta invaluable para profesionales que desean crear diseños de cocinas impresionantes y eficientes más rápido que nunca!¡Pruébalo gratis hoy mismo! O consulta todas nuestras opciones de precios.
2. Leroy Merlin 3D Kitchen Planner

Ideal para: Consumidores individuales que planean diseñar su cocina con productos de Leroy Merlin
El Planificador 3D de Cocinas de Leroy Merlin es una herramienta gratuita y online pensada para clientes que quieren diseñar su cocina utilizando el catálogo de productos de la marca. Permite crear planos en 2D y visualizaciones en 3D realistas para planificar distribución, mobiliario y electrodomésticos. Aunque es ideal para proyectos con productos Leroy Merlin, su alcance es más limitado si se buscan soluciones genéricas o personalizadas.
Pros:
- Gratuito y online
- Catálogo completo de productos Leroy Merlin
Contras:
- Limitado a la gama de Leroy Merlin
- Opciones de personalización limitadas fuera de su catálogo
Características principales:
- Diseño 2D y 3D de cocinas con productos reales
- Ajustes sencillos para dimensiones y distribución
- Visualización realista de materiales y acabados
- Generación de lista de la compra
3. AutoKitchen

Ideal para: Diseñadores de cocinas profesionales y estudios especializados
AutoKitchen es un software profesional para diseño de cocinas en 3D, ampliamente utilizado en estudios y tiendas especializadas. Permite crear planos técnicos detallados y renders fotorrealistas de alta calidad, con catálogos de fabricantes reales y funciones avanzadas de presentación. Es especialmente útil para quienes buscan un alto nivel de detalle y personalización.
Pros:
- Alta calidad de renderizado 3D
- Amplios catálogos de fabricantes reales
- Herramientas avanzadas para planos técnicos y presentaciones
Contras:
- Coste elevado comparado con opciones básicas
- Curva de aprendizaje más pronunciada para nuevos usuarios
Características principales:
- Planos técnicos en 2D y 3D
- Renderizados fotorrealistas profesionales
- Integración con catálogos de marcas líderes
- Generación de presupuestos y documentación comercial
4. Winner Flex (Cyncly)

Ideal para: Profesionales y estudios que necesitan flujos de trabajo avanzados y colaboración
Winner Flex de Cyncly es un software de diseño de cocinas profesional basado en la nube, pensado para estudios y vendedores que necesitan colaboración ágil y acceso remoto. Permite diseñar cocinas completas en 3D con catálogos de fabricantes, generar presupuestos y compartir proyectos fácilmente con clientes y compañeros de equipo.
Pros:
- Basado en la nube para acceder desde cualquier lugar
- Colaboración y revisión en tiempo real
- Catálogos actualizados de fabricantes reales
Contras:
- Requiere conexión constante a internet
- Puede implicar costes más altos por suscripción
Características principales:
- Diseño 3D detallado con materiales reales
- Herramientas de presupuestado y ventas integradas
- Colaboración en equipo y con clientes en tiempo real
- Acceso online con actualizaciones automáticas
5. Planner 5D

Ideal para: Propietarios, entusiastas del bricolaje y diseñadores aficionados.
Planner 5D es una herramienta de diseño de cocinas versátil, que atiende tanto a usuarios ocasionales, como propietarios de casa y aficionados al bricolaje, como a profesionales que buscan una solución de diseño sencilla. Su principal atractivo reside en su simplicidad y facilidad de uso, lo que lo convierte en una opción predilecta para quienes se inician en el diseño de cocinas.
Puedes empezar desde cero o elegir entre una variedad de plantillas para iniciar tus proyectos de cocina. Planner 5D opera con una interfaz de arrastrar y soltar, por lo que es fácil manipular y colocar elementos de diseño. El software de diseño también soporta renderizado 3D básico, ayudando a los usuarios a visualizar sus diseños de cocina de una manera más tangible.
Tiene una cantidad sorprendente de características para el precio, pero si haces algo más que proyectos de bricolaje simples, puede que encuentres que le faltan algunas de las funciones esenciales que necesitas.
Pros:
- Altamente intuitivo y fácil de usar, bueno para principiantes
- Disponibilidad en múltiples plataformas mejora la accesibilidad
- Librería de elementos de diseño para la libertad creativa
Contras:
- Funciones avanzadas limitadas para diseño de grado profesional complejo
- La versión gratuita tiene restricciones, lo que significa que necesitarás actualizar para una funcionalidad completa
Características Principales:
- Visualizaciones en HD
- Catálogo de diseño generado por usuarios con más de 3,000 artículos
- Modos de diseño 2D y 3D
- Organización automática de muebles
6. Roomstyler

Ideal para: Aficionados y personas que buscan una herramienta sencilla para proyectos personales y generación de ideas
Roomstyler es una herramienta de diseño de cocina de nivel básico, principalmente adecuada para aficionados o aquellos que abordan proyectos de diseño personal. Ofrece una plataforma básica para que los usuarios experimenten con diferentes distribuciones y estilos de cocina. La fortaleza de Roomstyler reside en su simplicidad, permitiendo a los usuarios seleccionar y colocar rápidamente artículos de un catálogo de elementos de cocina.
Sin embargo, su simplicidad puede ser un arma de doble filo. Para profesionales o aquellos que buscan personalización detallada y renders de alta calidad, Roomstyler puede quedarse corto. Sirve como un buen punto de partida para novatos, pero carece de las capacidades requeridas para proyectos integrales orientados al cliente.
Pros:
- Directo y fácil de navegar, adecuado para principiantes
- Funcionalidad básica para la planificación sencilla de distribuciones de cocina
- Añadir productos de marcas reales
Contras:
- Opciones de diseño limitadas y renders de menor calidad
- No es el mejor para uso profesional o como planificador detallado de proyectos
Características Principales:
- Soporte tanto para diseño 2D como renderizado 3D
- Mobiliario de marcas reales
- Videos tutoriales para usuarios
7. Homestyler

Ideal para: Usuarios ocasionales y diseñadores profesionales en las primeras etapas de exploración de diseño
Homestyler ofrece una generosa cantidad de características, que van desde diseños 2D hasta visualizaciones 3D. Su principal atractivo es la capacidad de crear diseños rápidamente con herramientas fáciles de usar.
Cuenta con una variada librería de diseños que incluye algunas piezas de marcas reales que puedes añadir a tus diseños. Homestyler también ofrece la posibilidad de hacer recorridos virtuales por los proyectos.
Aunque es relativamente fácil de usar, sería ideal que tuviera más opciones de soporte personalizado y aprendizaje, en lugar de depender de foros y formularios de contacto genéricos.
Pros:
- Interfaz intuitiva, buena para principiantes y usuarios ocasionales
- Herramientas básicas para la disposición inicial y visualización del diseño
- Recorridos virtuales por proyectos
- Uso de muebles de marcas reales
Contras:
- Opciones de soporte personalizado limitadas
Características Principales:
- Soporta tanto planos de piso 2D como 3D
- Amplia librería de muebles que incluye miles de productos de marcas mundialmente famosas
- Visualizaciones inmersivas para recorrer tu diseño
8. SmartDraw

Ideal para: Empresas que necesitan diagramas esquemáticos rápidos y diseños básicos en 2D
SmartDraw es una herramienta de diagramación con capacidades que se extienden al diseño básico de cocinas. Es más adecuado para empresas que requieren diagramas esquemáticos rápidos en lugar de diseños detallados de cocinas en 3D.
SmartDraw ofrece una variedad de plantillas, útiles para crear diseños sencillos rápidamente. Sin embargo, carece de las características especializadas y capacidades de render 3D de un programa de remodelación de cocinas dedicado, como Cedreo.
Aunque es una excelente opción para crear planos de planta básicos y gráficos organizacionales, cuando se trata de crear diseños de cocinas 3D detallados y listos para el cliente, SmartDraw puede no ser la mejor elección.
Pros:
- Fácil de usar para necesidades básicas de diagramación y diseño
- Útil para dibujos esquemáticos rápidos y gráficos organizacionales
Contras:
- Carece de características específicas para el diseño detallado de cocinas
- Sin renderizados 3D
Características Principales:
- Diseños 2D detallados y precisos
- Más de 4,500 plantillas y 34,000 símbolos
- Interfaz simple y fácil de usar
9. ProKitchen Software

Ideal para: Diseñadores y salas de exposición especializadas en cocinas
ProKitchen Software es una herramienta especializada, diseñada específicamente para diseñadores de cocinas profesionales y showrooms. Ofrece una gama de características enfocadas, incluyendo un extenso catálogo de productos vinculados a fabricantes reales de gabinetes y electrodomésticos. Solo ten en cuenta que podrías tener que pagar extra por el catálogo completo.
También cuenta con algunas herramientas únicas que te permiten ofrecer a los clientes un recorrido virtual por tu proyecto de cocina usando un equipo de realidad virtual.
Además, tiene una buena variedad de videos tutoriales para comenzar, así como una formación en línea reglada (al momento de escribir, las formaciones cuestan 575€).
Pros:
- Catálogo de productos extenso para una planificación detallada
- Características especializadas adecuadas para el diseño profesional de cocinas
- Showroom VR utilizando Oculus Quest de realidad virtual
Contras:
- Catálogo completo de productos para usar en tus diseños solo disponible con el plan más costoso
- Velocidades de render más lentas y calidad inferior en comparación con el mejor programa
- No es útil si diseñas algo más que cocinas
Características Principales:
- Librería detallada de productos y materiales para poder personalizar la decoración
- Herramientas específicas diseñadas para profesionales del diseño de cocinas
- Compatible tanto con MacOS como con PC
- Diseña con productos y electrodomésticos de marcas reales
10. IKEA 3D Kitchen Planner

Ideal para: Consumidores individuales que planean una cocina con productos de IKEA
El IKEA 3D Kitchen Planner es una herramienta específicamente diseñada para individuos que planean comprar e instalar productos de cocina de IKEA. Es una solución ideal para clientes que ya tienen preferencia por la gama y el estilo de productos de IKEA.
El programa te permite seleccionar y colocar productos de IKEA en tu diseño de cocina y luego proporciona una visualización básica de cómo los artículos de IKEA se adaptarán a tu espacio. Aunque sirve como una herramienta útil para planificar cocinas IKEA, su utilidad es limitada fuera de este propósito específico.
Pros:
- Especializado para planificar cocinas con productos de IKEA
- Directo y fácil de usar para clientes de IKEA
Contras:
- Limitado a la gama de productos de IKEA
- Herramientas de diseño y renderizado básicas
Características Principales:
- Productos modernos que facilitan el diseño
- Genera una lista de compras para saber exactamente qué necesitarás comprar y cuánto costará el proyecto final
- Opción de contratar a un diseñador de cocinas de IKEA para ayudar (con un coste adicional)
11. SketchUp

Ideal para: Diseñadores profesionales y arquitectos que necesitan una herramienta de modelado 3D versátil
SketchUp es popular por su versatilidad y es ampliamente utilizado por profesionales en arquitectura y diseño, incluyendo el diseño de cocinas. Su fortaleza radica en su plataforma de modelado 3D detallado para crear diseños intrincados y precisos.
Sin embargo, su amplio alcance significa que no está exclusivamente enfocado en el diseño de cocinas (o diseño de interiores, para el caso), lo cual puede ser una desventaja para aquellos que buscan características especializadas en construcción de viviendas y remodelación. La curva de aprendizaje para SketchUp puede ser empinada para principiantes, especialmente para aquellos que no han utilizado un programa de modelado 3D antes.
Sin embargo, si tienes algo de experiencia en 3D o estás dispuesto a comprometerte a aprenderlo, SketchUp te ofrece una de las gamas más amplias de capacidades, casi al nivel de software CAD 3D completo.
Pros:
- Poderosas capacidades de modelado 3D permiten a usuarios avanzados crear diseños detallados y de alta calidad
- Altamente versátil, adecuado para una gama de necesidades profesionales de diseño
- Ampliable con plugins y extensiones adicionales (la mayoría son de pago)
Contras:
- Curva de aprendizaje empinada, especialmente para principiantes
- No enfocado exclusivamente en diseño de cocinas, lo que puede ser abrumador
Características Principales:
- Herramientas avanzadas de modelado 3D
- Amplia funcionalidad para diversas aplicaciones de diseño
- Gran librería de modelos 3D generados por usuarios
12. Coohom

Ideal para: Diseñadores de interiores y profesionales de reformas
Coohom se propone ser una solución integral para el diseño de interiores. Ofrece una amplia gama de herramientas como modelado 3D, recorridos en vídeo, dibujos de construcción detallados y colaboración en equipo.
Aunque Coohom es fácil de usar y ofrece una amplia gama de herramientas para el diseño de cocinas e interiores, asegúrate de leer la letra pequeña. El precio base puede no parecer mucho, pero tendrás que pagar más por un mejor soporte al cliente y opciones avanzadas.
Pros:
- Conjunto de herramientas extenso
- Imágenes 3D, panoramas y videos
- Buena gama de tutoriales, algunos enfocados en diseño de cocinas y baños
Contras:
- Falta de claridad en su estructura de precios
- Necesidad de pagar extra por un mejor soporte al cliente
- Necesidad de pagar extra por diseño de muebles personalizados para cocina y baño
Características Principales:
- Interfaz fácil de usar
- Capacidades de modelado 3D
- Renders de alta calidad
- Sube tus propios modelos 3D
Empieza a Crear mejores Diseños de Cocinas Hoy
La cocina es una de las habitaciones más importantes del hogar, ya que es donde muchas familias pasan la mayor cantidad de tiempo juntas. Para asegurarte de que sea perfecta, elegir el programa de diseño de cocina adecuado es crucial.
Como punto de partida, te recomendamos revisar las empresas que más te hayan llamado la atención de esta lista. Es probable que ofrezcan una prueba gratuita o una demostración para que puedas probarla antes de decidir si invertir tu dinero en ella. Si buscas algo más sencillo, como simplemente una representación virtual, también hay programas para eso.
Para aquellos que buscan un equilibrio entre facilidad de uso y capacidades profesionales, Cedreo es la solución ideal. Sus beneficios para profesionales del diseño y reforma de cocinas incluyen:
- Proceso de diseño rápido y eficiente con herramientas fáciles de usar
- Renders 3D de alta calidad que dan vida a tus ideas
- Librería extensa y personalizable para adaptarse a cualquier estilo o requisito
¿Quieres ver cómo Cedreo puede ayudarte a crear y vender más proyectos de diseño de cocinas? Comienza ahora.
Preguntas Frecuentes sobre el Programa de Diseño de Cocinas
Sí, la mayoría de las herramientas modernas para el planificador de cocinas ofrecen capacidades de diseño 3D, lo que te permite crear visualizaciones detalladas y realistas de la reforma de tu cocina. Estas funciones son ideales si te estás preguntando cómo diseñar una cocina paso a paso y quieres ver el resultado en 3D antes de ejecutar el proyecto.
Sí, algunas herramientas de diseño de cocinas (como IKEA 3D Kitchen Planner y ProKitchen Software) se integran con proveedores específicos de muebles, facilitando la planificación y visualización con productos reales de estos proveedores.
Los programas de diseño de muebles de cocina te permiten experimentar con diferentes soluciones de almacenamiento y distribuciones, ayudando a optimizar el espacio y crear una cocina más organizada. También permiten generar planos de cocinas 3D para comprobar que cada elemento encaja a la perfección antes de comenzar la obra.
Planificar un nuevo diseño de cocina generalmente implica evaluar tu espacio, determinar el flujo de trabajo (considerando el clásico triángulo de cocina) y usar un programa de diseño como Cedreo para visualizar y ajustar tu plan.
Sí, muchos programas online para diseñar cocinas (como Cedreo) están disponibles en línea, lo que te permite diseñar y visualizar las reformas de cocina en cualquier lugar donde tengas wifi.
Los tres tipos principales de diseños de cocinas son la forma de U, la forma de L y la distribución en galera, cada una ofreciendo diferentes ventajas dependiendo de tu espacio y necesidades.